0120-38-8127

受付時間:8:30〜17:30(土日祝日は除く)

シカマビルの建物情報

お問い合わせ番号:021-53440
シカマビル 外観1
シカマビル 平面1
シカマビル 外観9
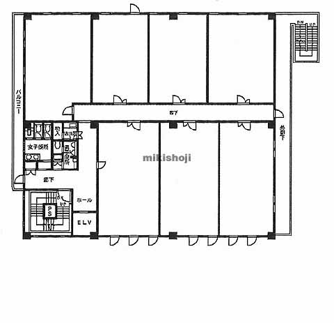
シカマビル 平面1
所在地
春日部市粕壁2-8-12
最寄駅
    春日部駅 ( 東武伊勢崎線 ) 東口 7分
竣工
1999年11月
規模
地上4階/地下1階建
延床面積
0坪
基準階面積
0坪
駐車場設備
あり
エレベーター
あり 1基

シカマビルの公開募集区画

階数 面積 賃料(共益費含) 預託金 入居可能日 一括請求リスト
3階 18.9坪(62.48㎡) 155,000円8,202円/坪 435,000円23,016円/坪 即日
階数
3階
面積
18.9坪(62.48㎡)
賃料(共益費含)
155,000円 8,202円/坪
預託金
435,000円 23,016円/坪
入居可能日
即日
一括請求リスト

※募集フロアや面積、賃貸条件、設備等は状況により変更になる場合があります。
※(案)のフロアは分割または一括貸の面積例です。
※賃貸条件の上段は月額、下段は坪単価を表示します。
※賃料、共益費は別途消費税の対象となります。
※掲載写真や図面(パース含む)が現況と異なる場合は現況を優先します。
※ご成約時は規定の仲介手数料を申し受けます。

シカマビルの周辺地図

オフィス探しで
こんなお悩み
ありませんか?
  • 物件を探す時間が無い
  • なかなか良い物件が
    見つからない
  • プロ目線で物件を
    提案してほしい

約60,000棟の
登録物件の中から
オフィス仲介のプロが
理想のオフィス探しを
徹底サポートいたします。

チェックした物件を