0120-38-8127

受付時間:8:30〜17:30(土日祝日は除く)

四谷学院ビルの建物情報

お問い合わせ番号:021-90831
四谷学院ビル 外観1
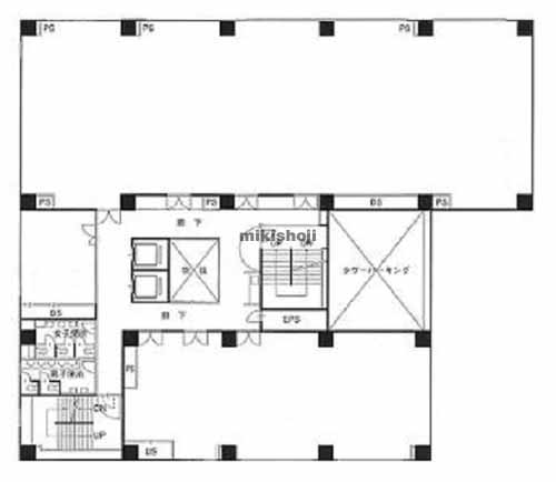
四谷学院ビル 平面1
四谷学院ビル 外観9
四谷学院ビル 平面1
所在地
千葉市中央区弁天1-2-8
最寄駅
    千葉駅(JR) 北口 3分
    千葉駅(千葉都市モノレール2号線) 中央口 6分
    千葉駅(千葉都市モノレール1号線) 中央口 6分
竣工
1990年11月(リニューアル:2017年 8月)
規模
地上7階建
延床面積
1,471坪
基準階面積
163坪
駐車場設備
あり 収容台数30台
エレベーター
あり 2基
空調設備
個別方式
基準天井高
2,540mm((OA高除く))

四谷学院ビルの公開募集区画

階数 面積 賃料(共益費含) 預託金 入居可能日 一括請求リスト
7階 19.5坪(64.463㎡) 相談相談/坪 相談相談/坪 入居日相談
階数
7階
面積
19.5坪(64.463㎡)
賃料(共益費含)
相談 相談/坪
預託金
相談 相談/坪
入居可能日
入居日相談
一括請求リスト

※募集フロアや面積、賃貸条件、設備等は状況により変更になる場合があります。
※(案)のフロアは分割または一括貸の面積例です。
※賃貸条件の上段は月額、下段は坪単価を表示します。
※賃料、共益費は別途消費税の対象となります。
※掲載写真や図面(パース含む)が現況と異なる場合は現況を優先します。
※ご成約時は規定の仲介手数料を申し受けます。

四谷学院ビルの周辺地図

オフィス探しで
こんなお悩み
ありませんか?
  • 物件を探す時間が無い
  • なかなか良い物件が
    見つからない
  • プロ目線で物件を
    提案してほしい

約60,000棟の
登録物件の中から
オフィス仲介のプロが
理想のオフィス探しを
徹底サポートいたします。

チェックした物件を