0120-38-8127

受付時間:8:30〜17:30(土日祝日は除く)

広島商中日生ビルの建物情報

お問い合わせ番号:010-06153
広島商中日生ビル 外観1
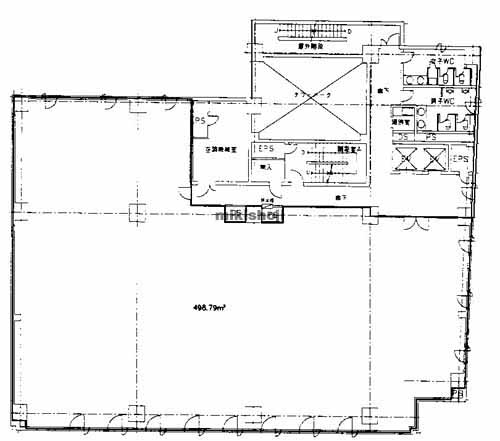
広島商中日生ビル 平面1
広島商中日生ビル 外観9
広島商中日生ビル 平面1
所在地
広島市中区大手町2-1-1
最寄駅
    本通駅(広島高速交通アストラムライン) 西1口 1分
    本通駅(広島電鉄) 2分
    県庁前駅(広島高速交通アストラムライン) 西1口 5分
竣工
1984年(リニューアル:2012年)
規模
地上9階/地下1階建
延床面積
1,898坪
基準階面積
151坪
駐車場設備
あり 収容台数32台
エレベーター
あり 2基
空調設備
個別方式
基準天井高
2,430mm

広島商中日生ビルの公開募集区画

階数 面積 賃料(共益費含) 預託金 入居可能日 一括請求リスト
9階 21.574坪(71.32㎡) 相談相談/坪 相談相談/坪 2026.02上旬
階数
9階
面積
21.574坪(71.32㎡)
賃料(共益費含)
相談 相談/坪
預託金
相談 相談/坪
入居可能日
2026.02上旬
一括請求リスト

※募集フロアや面積、賃貸条件、設備等は状況により変更になる場合があります。
※(案)のフロアは分割または一括貸の面積例です。
※賃貸条件の上段は月額、下段は坪単価を表示します。
※賃料、共益費は別途消費税の対象となります。
※掲載写真や図面(パース含む)が現況と異なる場合は現況を優先します。
※ご成約時は規定の仲介手数料を申し受けます。

広島商中日生ビルの周辺地図

オフィス探しで
こんなお悩み
ありませんか?
  • 物件を探す時間が無い
  • なかなか良い物件が
    見つからない
  • プロ目線で物件を
    提案してほしい

約60,000棟の
登録物件の中から
オフィス仲介のプロが
理想のオフィス探しを
徹底サポートいたします。

チェックした物件を