0120-38-8127

受付時間:8:30〜17:30(土日祝日は除く)

市野ビルの建物情報

お問い合わせ番号:021-05863
市野ビル 外観1
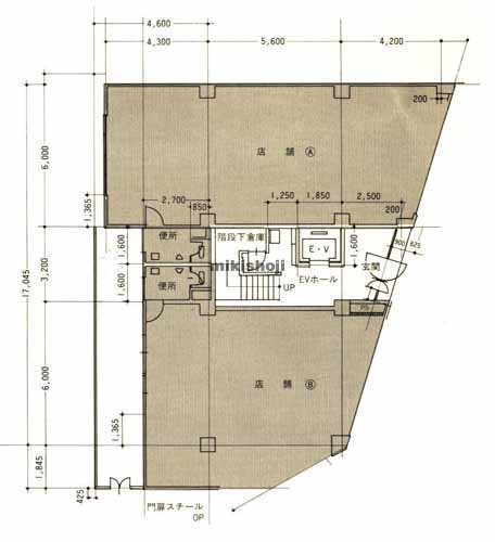
市野ビル 平面1
市野ビル 外観9
市野ビル 平面1
所在地
葛飾区東金町1-20-15
最寄駅
    金町駅(JR) 北口 3分
    京成金町駅(京成金町線) 5分
竣工
1977年 5月
規模
地上5階建
延床面積
0坪
基準階面積
50坪
駐車場設備
なし
エレベーター
あり 1基
空調設備
個別方式
基準天井高
2,500mm

市野ビルの公開募集区画

階数 面積 賃料(共益費含) 預託金 入居可能日 一括請求リスト
4階 26.06坪(86.149㎡) 286,660円11,000円/坪 2,293,280円88,000円/坪 2026.04中旬
階数
4階
面積
26.06坪(86.149㎡)
賃料(共益費含)
286,660円 11,000円/坪
預託金
2,293,280円 88,000円/坪
入居可能日
2026.04中旬
一括請求リスト

※募集フロアや面積、賃貸条件、設備等は状況により変更になる場合があります。
※(案)のフロアは分割または一括貸の面積例です。
※賃貸条件の上段は月額、下段は坪単価を表示します。
※賃料、共益費は別途消費税の対象となります。
※掲載写真や図面(パース含む)が現況と異なる場合は現況を優先します。
※ご成約時は規定の仲介手数料を申し受けます。

市野ビルの周辺地図

オフィス探しで
こんなお悩み
ありませんか?
  • 物件を探す時間が無い
  • なかなか良い物件が
    見つからない
  • プロ目線で物件を
    提案してほしい

約60,000棟の
登録物件の中から
オフィス仲介のプロが
理想のオフィス探しを
徹底サポートいたします。

チェックした物件を