0120-38-8127

受付時間:8:30〜17:30(土日祝日は除く)

一景ビルの建物情報

お問い合わせ番号:021-14860
一景ビル 外観1
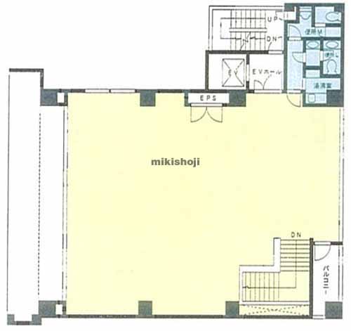
一景ビル 平面1
一景ビル 外観9
一景ビル 平面1
所在地
港区西新橋1-12-10
最寄駅
    内幸町駅(都営三田線) A3口 2分
    虎ノ門駅(東京メトロ銀座線) 1番口 5分
    新橋駅(JR) 日比谷口 7分
竣工
1994年 1月
規模
地上8階/地下2階建
延床面積
650坪
基準階面積
51坪
駐車場設備
なし
エレベーター
あり 1基
空調設備
個別方式
基準天井高
2,430mm

一景ビルの公開募集区画

階数 面積 賃料(共益費含) 預託金 入居可能日 一括請求リスト
8階 32.82坪(108.496㎡) 623,580円19,000円/坪 5,251,200円160,000円/坪 2026.03上旬
階数
8階
面積
32.82坪(108.496㎡)
賃料(共益費含)
623,580円 19,000円/坪
預託金
5,251,200円 160,000円/坪
入居可能日
2026.03上旬
一括請求リスト

※募集フロアや面積、賃貸条件、設備等は状況により変更になる場合があります。
※(案)のフロアは分割または一括貸の面積例です。
※賃貸条件の上段は月額、下段は坪単価を表示します。
※賃料、共益費は別途消費税の対象となります。
※掲載写真や図面(パース含む)が現況と異なる場合は現況を優先します。
※ご成約時は規定の仲介手数料を申し受けます。

一景ビルの周辺地図

オフィス探しで
こんなお悩み
ありませんか?
  • 物件を探す時間が無い
  • なかなか良い物件が
    見つからない
  • プロ目線で物件を
    提案してほしい

約60,000棟の
登録物件の中から
オフィス仲介のプロが
理想のオフィス探しを
徹底サポートいたします。

チェックした物件を