0120-38-8127

受付時間:8:30〜17:30(土日祝日は除く)

金子ビルの建物情報

お問い合わせ番号:021-12670
金子ビル 外観1
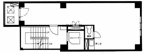
金子ビル 平面1
金子ビル 外観9
金子ビル 平面1
所在地
港区芝3-5-3
最寄駅
    芝公園駅(都営三田線) A2口 1分
    三田駅(都営浅草線・三田線) A10口 6分
    赤羽橋駅(都営大江戸線) 赤羽橋口 7分
竣工
1989年 2月
規模
地上7階建
延床面積
111坪
基準階面積
12坪
駐車場設備
なし
エレベーター
あり 1基
空調設備
個別方式
基準天井高
2,400mm

金子ビルの公開募集区画

階数 面積 賃料(共益費含) 預託金 入居可能日 一括請求リスト
6階 11.34坪(37.488㎡) 270,000円23,810円/坪 540,000円47,620円/坪 即日
階数
6階
面積
11.34坪(37.488㎡)
賃料(共益費含)
270,000円 23,810円/坪
預託金
540,000円 47,620円/坪
入居可能日
即日
一括請求リスト

※募集フロアや面積、賃貸条件、設備等は状況により変更になる場合があります。
※(案)のフロアは分割または一括貸の面積例です。
※賃貸条件の上段は月額、下段は坪単価を表示します。
※賃料、共益費は別途消費税の対象となります。
※掲載写真や図面(パース含む)が現況と異なる場合は現況を優先します。
※ご成約時は規定の仲介手数料を申し受けます。

金子ビルの周辺地図

オフィス探しで
こんなお悩み
ありませんか?
  • 物件を探す時間が無い
  • なかなか良い物件が
    見つからない
  • プロ目線で物件を
    提案してほしい

約60,000棟の
登録物件の中から
オフィス仲介のプロが
理想のオフィス探しを
徹底サポートいたします。

チェックした物件を