0120-38-8127

受付時間:8:30〜17:30(土日祝日は除く)

萩ビルの建物情報

お問い合わせ番号:008-10466
萩ビル 外観1
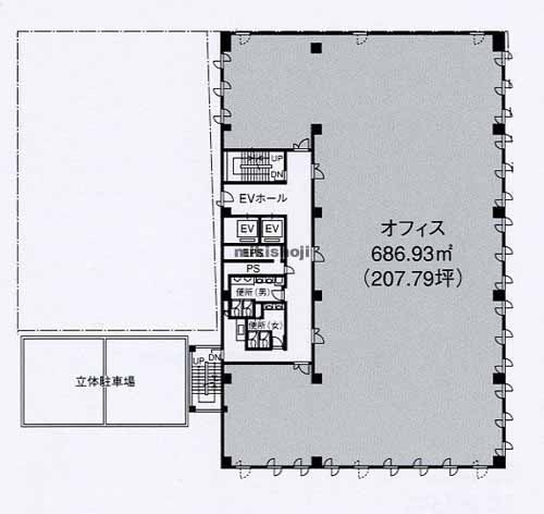
萩ビル 平面1
萩ビル 外観9
萩ビル 平面1
所在地
四日市市鵜の森1-3-20
最寄駅
    近鉄四日市駅(近鉄内部線・名古屋線・湯の山線) 西口 3分
    あすなろう四日市駅(四日市あすなろう鉄道内部線) 3分
    赤堀駅(四日市あすなろう鉄道内部線) 13分
竣工
1996年 8月
規模
地上9階建
延床面積
2,604坪
基準階面積
208坪
駐車場設備
あり 収容台数62台
エレベーター
あり 2基
空調設備
個別方式
基準天井高
2,600mm

萩ビルの公開募集区画

階数 面積 賃料(共益費含) 預託金 入居可能日 一括請求リスト
3階 33.35坪(110.248㎡) 366,850円11,000円/坪 2,334,500円70,000円/坪 2026.07上旬
5階 52.95坪(175.042㎡) 582,450円11,000円/坪 3,706,500円70,000円/坪 即日
階数
3階
面積
33.35坪(110.248㎡)
賃料(共益費含)
366,850円 11,000円/坪
預託金
2,334,500円 70,000円/坪
入居可能日
2026.07上旬
一括請求リスト
階数
5階
面積
52.95坪(175.042㎡)
賃料(共益費含)
582,450円 11,000円/坪
預託金
3,706,500円 70,000円/坪
入居可能日
即日
一括請求リスト

※募集フロアや面積、賃貸条件、設備等は状況により変更になる場合があります。
※(案)のフロアは分割または一括貸の面積例です。
※賃貸条件の上段は月額、下段は坪単価を表示します。
※賃料、共益費は別途消費税の対象となります。
※掲載写真や図面(パース含む)が現況と異なる場合は現況を優先します。
※ご成約時は規定の仲介手数料を申し受けます。

萩ビルの周辺地図

オフィス探しで
こんなお悩み
ありませんか?
  • 物件を探す時間が無い
  • なかなか良い物件が
    見つからない
  • プロ目線で物件を
    提案してほしい

約60,000棟の
登録物件の中から
オフィス仲介のプロが
理想のオフィス探しを
徹底サポートいたします。

チェックした物件を