0120-38-8127

受付時間:8:30〜17:30(土日祝日は除く)

日本生命梅田ビルの建物情報

お問い合わせ番号:009-00066
日本生命梅田ビル 外観1
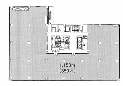
日本生命梅田ビル 平面1
日本生命梅田ビル エントランス1
日本生命梅田ビル エントランス2
日本生命梅田ビル エントランス3
日本生命梅田ビル エントランス4
日本生命梅田ビル エレベーターホール1
日本生命梅田ビル 水回り1
日本生命梅田ビル 水回り2
日本生命梅田ビル 外観9
日本生命梅田ビル 平面1
日本生命梅田ビル エントランス1
日本生命梅田ビル エントランス2
日本生命梅田ビル エントランス3
日本生命梅田ビル エントランス4
日本生命梅田ビル エレベーターホール1
日本生命梅田ビル 水回り1
日本生命梅田ビル 水回り2
所在地
大阪市北区堂山町3-3
最寄駅
    東梅田駅(地下鉄谷町線) 1番口 6分
    梅田駅(地下鉄御堂筋線) 15番口 7分
    梅田駅(阪神本線) 東出口 7分
竣工
1977年 7月(リニューアル:2006年)
規模
地上11階/地下2階建
延床面積
5,840坪
基準階面積
365坪
駐車場設備
あり 収容台数64台
エレベーター
あり 5基
空調設備
個別方式
基準天井高
2,500mm
基準床荷重
300kg/㎡(OA)

日本生命梅田ビルの公開募集区画

階数 面積 賃料(共益費含) 預託金 入居可能日 一括請求リスト
3階 80.38坪(265.72㎡) 未定未定/坪 未定未定/坪 2026.05上旬
階数
3階
面積
80.38坪(265.72㎡)
賃料(共益費含)
未定 未定/坪
預託金
未定 未定/坪
入居可能日
2026.05上旬
一括請求リスト

※募集フロアや面積、賃貸条件、設備等は状況により変更になる場合があります。
※(案)のフロアは分割または一括貸の面積例です。
※賃貸条件の上段は月額、下段は坪単価を表示します。
※賃料、共益費は別途消費税の対象となります。
※掲載写真や図面(パース含む)が現況と異なる場合は現況を優先します。
※ご成約時は規定の仲介手数料を申し受けます。

日本生命梅田ビルの周辺地図

オフィス探しで
こんなお悩み
ありませんか?
  • 物件を探す時間が無い
  • なかなか良い物件が
    見つからない
  • プロ目線で物件を
    提案してほしい

約60,000棟の
登録物件の中から
オフィス仲介のプロが
理想のオフィス探しを
徹底サポートいたします。

チェックした物件を