0120-38-8127

受付時間:8:30〜17:30(土日祝日は除く)

クリスタルタワーの建物情報

お問い合わせ番号:009-00504
クリスタルタワー 外観1
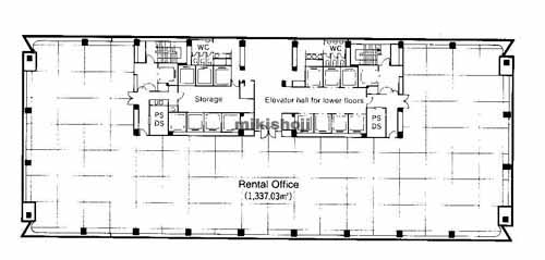
クリスタルタワー 平面1
クリスタルタワー 外観9
クリスタルタワー 平面1
所在地
大阪市中央区城見1-2-27
最寄駅
    大阪ビジネスパーク駅(地下鉄長堀鶴見緑地線) 3番口 2分
    大阪城北詰駅(JR) 1番口 5分
    京橋駅(地下鉄長堀鶴見緑地線/京阪本線) 2番口 9分
竣工
1990年 8月
規模
地上37階/地下2階建
延床面積
26,013坪
基準階面積
405坪
耐震
制震構造
駐車場設備
あり 収容台数246台
エレベーター
あり 16基
空調設備
個別方式
基準天井高
2,700mm
基準床荷重
400kg/㎡(一部500kg/㎡)

クリスタルタワーの公開募集区画

階数 面積 賃料(共益費含) 預託金 入居可能日 一括請求リスト
37階 413.39坪(1,366.585㎡) 未定未定/坪 未定未定/坪 2026.09上旬
階数
37階
面積
413.39坪(1,366.585㎡)
賃料(共益費含)
未定 未定/坪
預託金
未定 未定/坪
入居可能日
2026.09上旬
一括請求リスト

※募集フロアや面積、賃貸条件、設備等は状況により変更になる場合があります。
※(案)のフロアは分割または一括貸の面積例です。
※賃貸条件の上段は月額、下段は坪単価を表示します。
※賃料、共益費は別途消費税の対象となります。
※掲載写真や図面(パース含む)が現況と異なる場合は現況を優先します。
※ご成約時は規定の仲介手数料を申し受けます。

クリスタルタワーの周辺地図

オフィス探しで
こんなお悩み
ありませんか?
  • 物件を探す時間が無い
  • なかなか良い物件が
    見つからない
  • プロ目線で物件を
    提案してほしい

約60,000棟の
登録物件の中から
オフィス仲介のプロが
理想のオフィス探しを
徹底サポートいたします。

チェックした物件を