0120-38-8127

受付時間:8:30〜17:30(土日祝日は除く)

NLC新大阪18号館の建物情報

お問い合わせ番号:009-00898
NLC新大阪18号館 外観1
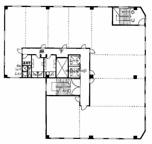
NLC新大阪18号館 平面1
NLC新大阪18号館 外観9
NLC新大阪18号館 平面1
所在地
大阪市淀川区西中島3-18-21
最寄駅
    南方駅(阪急京都本線) きた東口 2分
    西中島南方駅(地下鉄御堂筋線) 1番口 3分
    新大阪駅(地下鉄御堂筋線) 7番口 9分
竣工
1972年 4月
規模
地上6階/地下1階建
延床面積
1,160坪
基準階面積
170坪
駐車場設備
なし
エレベーター
あり 2基
空調設備
個別方式
基準天井高
2,500mm

NLC新大阪18号館の公開募集区画

階数 面積 賃料(共益費含) 預託金 入居可能日 一括請求リスト
2階 19.48坪(64.397㎡) 253,240円13,000円/坪 759,720円39,000円/坪 2026.05上旬
階数
2階
面積
19.48坪(64.397㎡)
賃料(共益費含)
253,240円 13,000円/坪
預託金
759,720円 39,000円/坪
入居可能日
2026.05上旬
一括請求リスト

※募集フロアや面積、賃貸条件、設備等は状況により変更になる場合があります。
※(案)のフロアは分割または一括貸の面積例です。
※賃貸条件の上段は月額、下段は坪単価を表示します。
※賃料、共益費は別途消費税の対象となります。
※掲載写真や図面(パース含む)が現況と異なる場合は現況を優先します。
※ご成約時は規定の仲介手数料を申し受けます。

NLC新大阪18号館の周辺地図

オフィス探しで
こんなお悩み
ありませんか?
  • 物件を探す時間が無い
  • なかなか良い物件が
    見つからない
  • プロ目線で物件を
    提案してほしい

約60,000棟の
登録物件の中から
オフィス仲介のプロが
理想のオフィス探しを
徹底サポートいたします。

チェックした物件を