0120-534-011

受付時間:8:30〜17:30(土日祝日は除く)

ポルタス・センタービルの建物情報

お問い合わせ番号:009-07077
ポルタス・センタービル 外観1
ポルタス・センタービル 平面1
ポルタス・センタービル 外観9
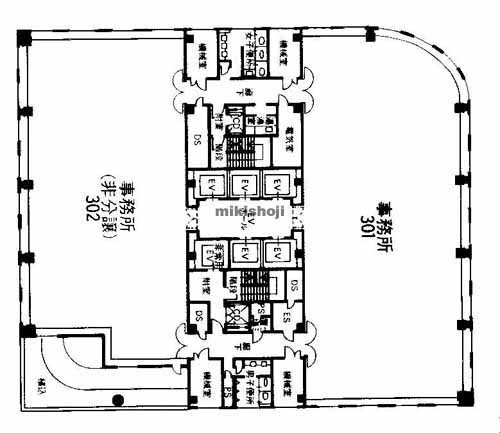
ポルタス・センタービル 平面1
所在地
堺市堺区戎島町4-45-1
最寄駅
    堺駅(南海本線) 西出口 2分
    大小路駅(阪堺電気軌道阪堺線) 10分
    宿院駅(阪堺電気軌道阪堺線) 13分
竣工
1993年10月
規模
地上16階/地下2階建
延床面積
25,700坪
基準階面積
269坪
駐車場設備
あり 収容台数365台
エレベーター
あり 6基
空調設備
セントラル方式
基準天井高
2,600mm
基準床荷重
300kg/㎡

ポルタス・センタービルの公開募集区画

階数 面積 賃料(共益費含) 預託金 入居可能日 一括請求リスト
6階 134.26坪(443.837㎡) 未定未定/坪 未定未定/坪 2026.11上旬
階数
6階
面積
134.26坪(443.837㎡)
賃料(共益費含)
未定 未定/坪
預託金
未定 未定/坪
入居可能日
2026.11上旬
一括請求リスト

※募集フロアや面積、賃貸条件、設備等は状況により変更になる場合があります。
※(案)のフロアは分割または一括貸の面積例です。
※賃貸条件の上段は月額、下段は坪単価を表示します。
※賃料、共益費は別途消費税の対象となります。
※掲載写真や図面(パース含む)が現況と異なる場合は現況を優先します。
※ご成約時は規定の仲介手数料を申し受けます。

ポルタス・センタービルの周辺地図

オフィス探しで
こんなお悩み
ありませんか?
  • 物件を探す時間が無い
  • なかなか良い物件が
    見つからない
  • プロ目線で物件を
    提案してほしい

約60,000棟の
登録物件の中から
オフィス仲介のプロが
理想のオフィス探しを
徹底サポートいたします。

チェックした物件を