0120-38-8127

受付時間:8:30〜17:30(土日祝日は除く)

水の森ビルの建物情報

お問い合わせ番号:008-11087
水の森ビル 外観1
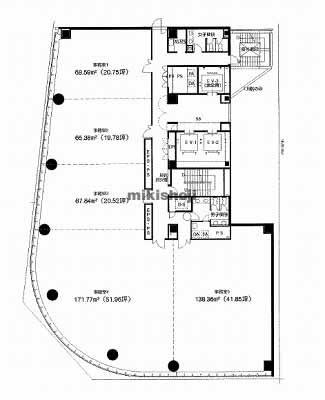
水の森ビル 平面1
水の森ビル 外観9
水の森ビル 平面1
所在地
静岡市駿河区南町14-1
最寄駅
    静岡駅(JR) 南口 2分
    新静岡駅(静岡鉄道) 鷹匠口 9分
    日吉町駅(静岡鉄道) 12分
竣工
2003年 8月
規模
地上11階建
延床面積
2,260坪
基準階面積
155坪
駐車場設備
あり 収容台数84台
エレベーター
あり 3基
空調設備
個別方式
基準天井高
2,700mm
基準床荷重
300kg/㎡

水の森ビルの公開募集区画

階数 面積 賃料(共益費含) 預託金 入居可能日 一括請求リスト
2階 148.27坪(490.151㎡) 相談相談/坪 相談相談/坪 2026.12上旬
3階 41.85坪(138.348㎡) 相談相談/坪 相談相談/坪 2026.12上旬
10階 19.78坪(65.389㎡) 相談相談/坪 相談相談/坪 2026.07上旬
階数
2階
面積
148.27坪(490.151㎡)
賃料(共益費含)
相談 相談/坪
預託金
相談 相談/坪
入居可能日
2026.12上旬
一括請求リスト
階数
3階
面積
41.85坪(138.348㎡)
賃料(共益費含)
相談 相談/坪
預託金
相談 相談/坪
入居可能日
2026.12上旬
一括請求リスト
階数
10階
面積
19.78坪(65.389㎡)
賃料(共益費含)
相談 相談/坪
預託金
相談 相談/坪
入居可能日
2026.07上旬
一括請求リスト

※募集フロアや面積、賃貸条件、設備等は状況により変更になる場合があります。
※(案)のフロアは分割または一括貸の面積例です。
※賃貸条件の上段は月額、下段は坪単価を表示します。
※賃料、共益費は別途消費税の対象となります。
※掲載写真や図面(パース含む)が現況と異なる場合は現況を優先します。
※ご成約時は規定の仲介手数料を申し受けます。

水の森ビルの周辺地図

オフィス探しで
こんなお悩み
ありませんか?
  • 物件を探す時間が無い
  • なかなか良い物件が
    見つからない
  • プロ目線で物件を
    提案してほしい

約60,000棟の
登録物件の中から
オフィス仲介のプロが
理想のオフィス探しを
徹底サポートいたします。

チェックした物件を