0120-534-011

受付時間:8:30〜17:30(土日祝日は除く)

DPスクエア東桜の建物情報

お問い合わせ番号:008-11514
DPスクエア東桜 外観1
DPスクエア東桜 平面1
DPスクエア東桜 外観9
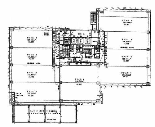
DPスクエア東桜 平面1
所在地
名古屋市東区東桜1-14-11
最寄駅
    高岳駅(名古屋市営桜通線) 4番口 4分
    栄駅(名古屋市営東山線・名城線) 4A口 8分
    栄町駅(名鉄瀬戸線) 9分
竣工
2008年 6月
規模
地上11階建
延床面積
5,726坪
基準階面積
374坪
駐車場設備
あり 収容台数160台
エレベーター
あり 4基
空調設備
個別方式
基準天井高
2,700mm(OA高除く)
基準床荷重
300kg/㎡

DPスクエア東桜の公開募集区画

階数 面積 賃料(共益費含) 預託金 入居可能日 一括請求リスト
8階 65.55坪(216.695㎡) 相談相談/坪 相談相談/坪 2026.06上旬
階数
8階
面積
65.55坪(216.695㎡)
賃料(共益費含)
相談 相談/坪
預託金
相談 相談/坪
入居可能日
2026.06上旬
一括請求リスト

※募集フロアや面積、賃貸条件、設備等は状況により変更になる場合があります。
※(案)のフロアは分割または一括貸の面積例です。
※賃貸条件の上段は月額、下段は坪単価を表示します。
※賃料、共益費は別途消費税の対象となります。
※掲載写真や図面(パース含む)が現況と異なる場合は現況を優先します。
※ご成約時は規定の仲介手数料を申し受けます。

DPスクエア東桜の周辺地図

DPスクエア東桜のビル概要

DPスクエア東桜は、名古屋市東区東桜1-14-11に位置する、2008年6月竣工の地上11階のオフィスビルです。名古屋市営桜通線高岳駅徒歩4分、名古屋市営東山線・名城線栄駅徒歩8分、名鉄瀬戸線栄町駅徒歩9分。出入口が双方向通行が可能な車路を確保、普通車80台、ハイルーフ80台計160台の駐車場です(空きはお問い合わせください)天井高は2,700mm、グリッド式天井システムでレイアウトが自由。床荷重300㎏/㎡、OAフロア75mm、コンセント容量60VA/㎡、空冷ヒートポンプパッケージ方式で個別空調、1フロア最大9分割対応可能。非接触型ICカードキーを採用、エントランスホールやエレベーター内、駐車場などには防犯カメラを設置、24時間監視をしてます。屋上に非常用発電機設置スペースを確保し防災対策も行ってます。

オフィス探しで
こんなお悩み
ありませんか?
  • 物件を探す時間が無い
  • なかなか良い物件が
    見つからない
  • プロ目線で物件を
    提案してほしい

約60,000棟の
登録物件の中から
オフィス仲介のプロが
理想のオフィス探しを
徹底サポートいたします。

チェックした物件を