0120-534-011

受付時間:8:30〜17:30(土日祝日は除く)

(仮称)TOSHO-BLDG安城の建物情報

お問い合わせ番号:008-41651
(仮称)TOSHO-BLDG安城 外観1
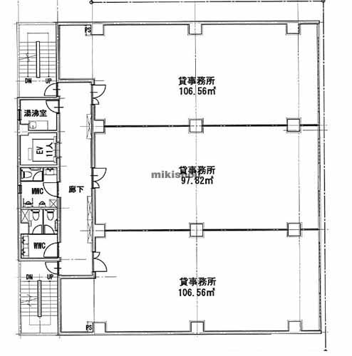
(仮称)TOSHO-BLDG安城 平面1
(仮称)TOSHO-BLDG安城 外観9
(仮称)TOSHO-BLDG安城 平面1
所在地
安城市末広町2-8
最寄駅
    安城駅 ( JR ) 南口 5分
    南安城駅 ( 名鉄西尾線 ) 13分
    北安城駅 ( 名鉄西尾線 ) 15分
竣工
2026年 7月(予定)
規模
地上6階建
延床面積
545坪
基準階面積
94坪
駐車場設備
あり 収容台数29台
エレベーター
あり 1基
空調設備
個別方式

(仮称)TOSHO-BLDG安城の公開募集区画

階数 面積 賃料(共益費含) 預託金 入居可能日 一括請求リスト
2階 91.42坪(302.216㎡) 1,097,040円12,000円/坪 10,970,400円120,000円/坪 2026.08上旬
2階(案) 32.23坪(106.546㎡) 386,760円12,000円/坪 3,867,600円120,000円/坪 入居日相談
2階(案) 26.96坪(89.124㎡) 323,520円12,000円/坪 3,235,200円120,000円/坪 入居日相談
2階(案) 32.23坪(106.546㎡) 386,760円12,000円/坪 3,867,600円120,000円/坪 入居日相談
3階 93.8坪(310.084㎡) 1,125,600円12,000円/坪 11,256,000円120,000円/坪 2026.08上旬
3階(案) 32.23坪(106.546㎡) 386,760円12,000円/坪 3,867,600円120,000円/坪 入居日相談
3階(案) 29.59坪(97.819㎡) 355,080円12,000円/坪 3,550,800円120,000円/坪 入居日相談
3階(案) 32.23坪(106.546㎡) 386,760円12,000円/坪 3,867,600円120,000円/坪 入居日相談
4階 93.8坪(310.084㎡) 1,125,600円12,000円/坪 11,256,000円120,000円/坪 2026.08上旬
4階(案) 32.23坪(106.546㎡) 386,760円12,000円/坪 3,867,600円120,000円/坪 入居日相談
4階(案) 29.59坪(97.819㎡) 355,080円12,000円/坪 3,550,800円120,000円/坪 入居日相談
4階(案) 32.23坪(106.546㎡) 386,760円12,000円/坪 3,867,600円120,000円/坪 入居日相談
5階 93.8坪(310.084㎡) 1,125,600円12,000円/坪 11,256,000円120,000円/坪 2026.08上旬
5階(案) 32.23坪(106.546㎡) 386,760円12,000円/坪 3,867,600円120,000円/坪 入居日相談
5階(案) 29.59坪(97.819㎡) 355,080円12,000円/坪 3,550,800円120,000円/坪 入居日相談
5階(案) 32.23坪(106.546㎡) 386,760円12,000円/坪 3,867,600円120,000円/坪 入居日相談
6階 93.8坪(310.084㎡) 1,125,600円12,000円/坪 11,256,000円120,000円/坪 2026.08上旬
6階(案) 32.23坪(106.546㎡) 386,760円12,000円/坪 3,867,600円120,000円/坪 入居日相談
6階(案) 29.59坪(97.819㎡) 355,080円12,000円/坪 3,550,800円120,000円/坪 入居日相談
6階(案) 32.23坪(106.546㎡) 386,760円12,000円/坪 3,867,600円120,000円/坪 入居日相談
階数
2階
面積
91.42坪(302.216㎡)
賃料(共益費含)
1,097,040円 12,000円/坪
預託金
10,970,400円 120,000円/坪
入居可能日
2026.08上旬
一括請求リスト
階数
2階(案)
面積
32.23坪(106.546㎡)
賃料(共益費含)
386,760円 12,000円/坪
預託金
3,867,600円 120,000円/坪
入居可能日
入居日相談
一括請求リスト
階数
2階(案)
面積
26.96坪(89.124㎡)
賃料(共益費含)
323,520円 12,000円/坪
預託金
3,235,200円 120,000円/坪
入居可能日
入居日相談
一括請求リスト
階数
2階(案)
面積
32.23坪(106.546㎡)
賃料(共益費含)
386,760円 12,000円/坪
預託金
3,867,600円 120,000円/坪
入居可能日
入居日相談
一括請求リスト
階数
3階
面積
93.8坪(310.084㎡)
賃料(共益費含)
1,125,600円 12,000円/坪
預託金
11,256,000円 120,000円/坪
入居可能日
2026.08上旬
一括請求リスト
階数
3階(案)
面積
32.23坪(106.546㎡)
賃料(共益費含)
386,760円 12,000円/坪
預託金
3,867,600円 120,000円/坪
入居可能日
入居日相談
一括請求リスト
階数
3階(案)
面積
29.59坪(97.819㎡)
賃料(共益費含)
355,080円 12,000円/坪
預託金
3,550,800円 120,000円/坪
入居可能日
入居日相談
一括請求リスト
階数
3階(案)
面積
32.23坪(106.546㎡)
賃料(共益費含)
386,760円 12,000円/坪
預託金
3,867,600円 120,000円/坪
入居可能日
入居日相談
一括請求リスト
階数
4階
面積
93.8坪(310.084㎡)
賃料(共益費含)
1,125,600円 12,000円/坪
預託金
11,256,000円 120,000円/坪
入居可能日
2026.08上旬
一括請求リスト
階数
4階(案)
面積
32.23坪(106.546㎡)
賃料(共益費含)
386,760円 12,000円/坪
預託金
3,867,600円 120,000円/坪
入居可能日
入居日相談
一括請求リスト
階数
4階(案)
面積
29.59坪(97.819㎡)
賃料(共益費含)
355,080円 12,000円/坪
預託金
3,550,800円 120,000円/坪
入居可能日
入居日相談
一括請求リスト
階数
4階(案)
面積
32.23坪(106.546㎡)
賃料(共益費含)
386,760円 12,000円/坪
預託金
3,867,600円 120,000円/坪
入居可能日
入居日相談
一括請求リスト
階数
5階
面積
93.8坪(310.084㎡)
賃料(共益費含)
1,125,600円 12,000円/坪
預託金
11,256,000円 120,000円/坪
入居可能日
2026.08上旬
一括請求リスト
階数
5階(案)
面積
32.23坪(106.546㎡)
賃料(共益費含)
386,760円 12,000円/坪
預託金
3,867,600円 120,000円/坪
入居可能日
入居日相談
一括請求リスト
階数
5階(案)
面積
29.59坪(97.819㎡)
賃料(共益費含)
355,080円 12,000円/坪
預託金
3,550,800円 120,000円/坪
入居可能日
入居日相談
一括請求リスト
階数
5階(案)
面積
32.23坪(106.546㎡)
賃料(共益費含)
386,760円 12,000円/坪
預託金
3,867,600円 120,000円/坪
入居可能日
入居日相談
一括請求リスト
階数
6階
面積
93.8坪(310.084㎡)
賃料(共益費含)
1,125,600円 12,000円/坪
預託金
11,256,000円 120,000円/坪
入居可能日
2026.08上旬
一括請求リスト
階数
6階(案)
面積
32.23坪(106.546㎡)
賃料(共益費含)
386,760円 12,000円/坪
預託金
3,867,600円 120,000円/坪
入居可能日
入居日相談
一括請求リスト
階数
6階(案)
面積
29.59坪(97.819㎡)
賃料(共益費含)
355,080円 12,000円/坪
預託金
3,550,800円 120,000円/坪
入居可能日
入居日相談
一括請求リスト
階数
6階(案)
面積
32.23坪(106.546㎡)
賃料(共益費含)
386,760円 12,000円/坪
預託金
3,867,600円 120,000円/坪
入居可能日
入居日相談
一括請求リスト

※募集フロアや面積、賃貸条件、設備等は状況により変更になる場合があります。
※(案)のフロアは分割または一括貸の面積例です。
※賃貸条件の上段は月額、下段は坪単価を表示します。
※賃料、共益費は別途消費税の対象となります。
※掲載写真や図面(パース含む)が現況と異なる場合は現況を優先します。
※ご成約時は規定の仲介手数料を申し受けます。

(仮称)TOSHO-BLDG安城の周辺地図

オフィス探しで
こんなお悩み
ありませんか?
  • 物件を探す時間が無い
  • なかなか良い物件が
    見つからない
  • プロ目線で物件を
    提案してほしい

約60,000棟の
登録物件の中から
オフィス仲介のプロが
理想のオフィス探しを
徹底サポートいたします。

チェックした物件を