0120-534-011

受付時間:8:30〜17:30(土日祝日は除く)

新町ビルの建物情報

お問い合わせ番号:009-00633
新町ビル 外観1
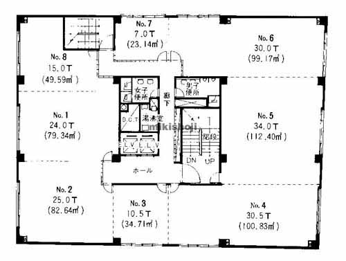
新町ビル 平面1
新町ビル 外観9
新町ビル 平面1
所在地
大阪市西区新町1-2-13
最寄駅
    四ツ橋駅(地下鉄四つ橋線) 1-A口 4分
    本町駅(地下鉄御堂筋線・四つ橋線・中央線) 22番口 6分
竣工
1970年 5月
規模
地上10階/地下1階建
延床面積
1,850坪
基準階面積
176坪
駐車場設備
なし
エレベーター
あり 2基
空調設備
個別方式
基準天井高
2,300mm

新町ビルの公開募集区画

階数 面積 賃料(共益費含) 預託金 入居可能日 一括請求リスト
3階 11.5坪(38.017㎡) 143,750円12,500円/坪 0円0円/坪 即日
8階 18.8坪(62.149㎡) 235,000円12,500円/坪 0円0円/坪 即日
階数
3階
面積
11.5坪(38.017㎡)
賃料(共益費含)
143,750円 12,500円/坪
預託金
0円 0円/坪
入居可能日
即日
一括請求リスト
階数
8階
面積
18.8坪(62.149㎡)
賃料(共益費含)
235,000円 12,500円/坪
預託金
0円 0円/坪
入居可能日
即日
一括請求リスト

※募集フロアや面積、賃貸条件、設備等は状況により変更になる場合があります。
※(案)のフロアは分割または一括貸の面積例です。
※賃貸条件の上段は月額、下段は坪単価を表示します。
※賃料、共益費は別途消費税の対象となります。
※掲載写真や図面(パース含む)が現況と異なる場合は現況を優先します。
※ご成約時は規定の仲介手数料を申し受けます。

新町ビルの周辺地図

オフィス探しで
こんなお悩み
ありませんか?
  • 物件を探す時間が無い
  • なかなか良い物件が
    見つからない
  • プロ目線で物件を
    提案してほしい

約60,000棟の
登録物件の中から
オフィス仲介のプロが
理想のオフィス探しを
徹底サポートいたします。

チェックした物件を