0120-534-011

受付時間:8:30〜17:30(土日祝日は除く)

フェニックス内本町ビルの建物情報

お問い合わせ番号:009-03344
フェニックス内本町ビル 外観1
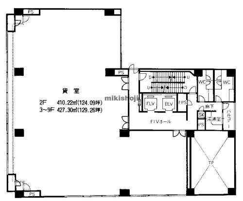
フェニックス内本町ビル 平面1
フェニックス内本町ビル 外観9
フェニックス内本町ビル 平面1
所在地
大阪市中央区内本町2-1-13
最寄駅
    谷町四丁目駅(地下鉄谷町線・中央線) 4番口 5分
    堺筋本町駅(地下鉄堺筋線・中央線) 12番口 8分
    天満橋駅(地下鉄谷町線/京阪中之島線・本線) 4番口 11分
竣工
1990年11月(リニューアル:2010年 7月)
規模
地上11階/地下1階建
延床面積
2,020坪
基準階面積
130坪
駐車場設備
あり 収容台数31台
エレベーター
あり 2基
空調設備
個別方式
基準天井高
2,500mm
基準床荷重
300kg/㎡

フェニックス内本町ビルの公開募集区画

階数 面積 賃料(共益費含) 預託金 入居可能日 一括請求リスト
11階 44.66坪(147.637㎡) 625,240円14,000円/坪 2,947,560円66,000円/坪 入居日相談
階数
11階
面積
44.66坪(147.637㎡)
賃料(共益費含)
625,240円 14,000円/坪
預託金
2,947,560円 66,000円/坪
入居可能日
入居日相談
一括請求リスト

※募集フロアや面積、賃貸条件、設備等は状況により変更になる場合があります。
※(案)のフロアは分割または一括貸の面積例です。
※賃貸条件の上段は月額、下段は坪単価を表示します。
※賃料、共益費は別途消費税の対象となります。
※掲載写真や図面(パース含む)が現況と異なる場合は現況を優先します。
※ご成約時は規定の仲介手数料を申し受けます。

フェニックス内本町ビルの周辺地図

オフィス探しで
こんなお悩み
ありませんか?
  • 物件を探す時間が無い
  • なかなか良い物件が
    見つからない
  • プロ目線で物件を
    提案してほしい

約60,000棟の
登録物件の中から
オフィス仲介のプロが
理想のオフィス探しを
徹底サポートいたします。

チェックした物件を