0120-534-011

受付時間:8:30〜17:30(土日祝日は除く)

日本生命四条大宮ビルの建物情報

お問い合わせ番号:009-05050
日本生命四条大宮ビル 外観1
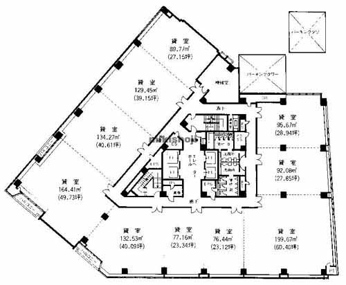
日本生命四条大宮ビル 平面1
日本生命四条大宮ビル 外観9
日本生命四条大宮ビル 平面1
所在地
下京区大宮通四条下る四条大宮町2
最寄駅
    大宮駅(阪急京都本線) 北口 1分
    四条大宮駅(京福嵐山本線) 1分
    烏丸駅(阪急京都本線) 出口26 13分
竣工
1987年 1月(リニューアル:2007年)
規模
地上9階/地下1階建
延床面積
4,618坪
基準階面積
363坪
駐車場設備
あり 収容台数66台
エレベーター
あり 4基
空調設備
個別方式
基準天井高
2,460mm
基準床荷重
300kg/㎡

日本生命四条大宮ビルの公開募集区画

階数 面積 賃料(共益費含) 預託金 入居可能日 一括請求リスト
8階 89.2坪(294.877㎡) 未定未定/坪 未定未定/坪 2026.11上旬
8階 23.61坪(78.05㎡) 未定未定/坪 未定未定/坪 即日
8階(案) 112.81坪(372.927㎡) 未定未定/坪 未定未定/坪 2026.11上旬
7階 251.54坪(831.541㎡) 未定未定/坪 未定未定/坪 即日
5階 149.35坪(493.721㎡) 未定未定/坪 未定未定/坪 即日
5階(案) 220.17坪(727.838㎡) 未定未定/坪 未定未定/坪 2027.05上旬
階数
8階
面積
89.2坪(294.877㎡)
賃料(共益費含)
未定 未定/坪
預託金
未定 未定/坪
入居可能日
2026.11上旬
一括請求リスト
階数
8階
面積
23.61坪(78.05㎡)
賃料(共益費含)
未定 未定/坪
預託金
未定 未定/坪
入居可能日
即日
一括請求リスト
階数
8階(案)
面積
112.81坪(372.927㎡)
賃料(共益費含)
未定 未定/坪
預託金
未定 未定/坪
入居可能日
2026.11上旬
一括請求リスト
階数
7階
面積
251.54坪(831.541㎡)
賃料(共益費含)
未定 未定/坪
預託金
未定 未定/坪
入居可能日
即日
一括請求リスト
階数
5階
面積
149.35坪(493.721㎡)
賃料(共益費含)
未定 未定/坪
預託金
未定 未定/坪
入居可能日
即日
一括請求リスト
階数
5階(案)
面積
220.17坪(727.838㎡)
賃料(共益費含)
未定 未定/坪
預託金
未定 未定/坪
入居可能日
2027.05上旬
一括請求リスト

※募集フロアや面積、賃貸条件、設備等は状況により変更になる場合があります。
※(案)のフロアは分割または一括貸の面積例です。
※賃貸条件の上段は月額、下段は坪単価を表示します。
※賃料、共益費は別途消費税の対象となります。
※掲載写真や図面(パース含む)が現況と異なる場合は現況を優先します。
※ご成約時は規定の仲介手数料を申し受けます。

日本生命四条大宮ビルの周辺地図

オフィス探しで
こんなお悩み
ありませんか?
  • 物件を探す時間が無い
  • なかなか良い物件が
    見つからない
  • プロ目線で物件を
    提案してほしい

約60,000棟の
登録物件の中から
オフィス仲介のプロが
理想のオフィス探しを
徹底サポートいたします。

チェックした物件を