0120-38-8127

受付時間:8:30〜17:30(土日祝日は除く)

四条SETビルの建物情報

お問い合わせ番号:009-05284
四条SETビル 外観1
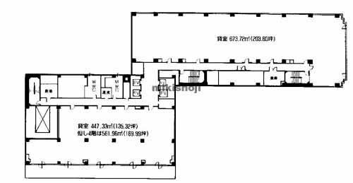
四条SETビル 平面1
四条SETビル 外観9
四条SETビル 平面1
所在地
下京区四条柳馬場西入立売中之町99
最寄駅
    烏丸駅(阪急京都本線) 13番口 1分
    河原町駅(阪急京都本線) 12番口 2分
    四条駅(京都市営烏丸線) 2番口 5分
竣工
1992年 9月
規模
地上8階/地下1階建
延床面積
4,712坪
基準階面積
374坪
駐車場設備
あり 収容台数20台
エレベーター
あり 4基
空調設備
セントラル方式
基準天井高
2,500mm
基準床荷重
300kg/㎡

四条SETビルの公開募集区画

階数 面積 賃料(共益費含) 預託金 入居可能日 一括請求リスト
4階 35.62坪(117.753㎡) 未定未定/坪 未定未定/坪 2026.03上旬
4階 88.53坪(292.662㎡) 未定未定/坪 未定未定/坪 即日
階数
4階
面積
35.62坪(117.753㎡)
賃料(共益費含)
未定 未定/坪
預託金
未定 未定/坪
入居可能日
2026.03上旬
一括請求リスト
階数
4階
面積
88.53坪(292.662㎡)
賃料(共益費含)
未定 未定/坪
預託金
未定 未定/坪
入居可能日
即日
一括請求リスト

※募集フロアや面積、賃貸条件、設備等は状況により変更になる場合があります。
※(案)のフロアは分割または一括貸の面積例です。
※賃貸条件の上段は月額、下段は坪単価を表示します。
※賃料、共益費は別途消費税の対象となります。
※掲載写真や図面(パース含む)が現況と異なる場合は現況を優先します。
※ご成約時は規定の仲介手数料を申し受けます。

四条SETビルの周辺地図

オフィス探しで
こんなお悩み
ありませんか?
  • 物件を探す時間が無い
  • なかなか良い物件が
    見つからない
  • プロ目線で物件を
    提案してほしい

約60,000棟の
登録物件の中から
オフィス仲介のプロが
理想のオフィス探しを
徹底サポートいたします。

チェックした物件を