0120-38-8127

受付時間:8:30〜17:30(土日祝日は除く)

金沢フコク生命駅前ビルの建物情報

お問い合わせ番号:009-06466
金沢フコク生命駅前ビル 外観1
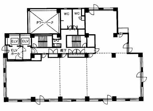
金沢フコク生命駅前ビル 平面1
金沢フコク生命駅前ビル エントランス1
金沢フコク生命駅前ビル 水回り1
金沢フコク生命駅前ビル 水回り2
金沢フコク生命駅前ビル 水回り3
金沢フコク生命駅前ビル 外観9
金沢フコク生命駅前ビル 平面1
金沢フコク生命駅前ビル エントランス1
金沢フコク生命駅前ビル 水回り1
金沢フコク生命駅前ビル 水回り2
金沢フコク生命駅前ビル 水回り3
所在地
石川県金沢市本町2-11-7
最寄駅
    北鉄金沢駅(北陸鉄道浅野川線) A-1口 3分
    金沢駅(IRいしかわ鉄道線) 東口 5分
    金沢駅(JR) 東口 5分
竣工
1990年 4月(リニューアル:2020年 8月)
規模
地上12階建
延床面積
2,418坪
基準階面積
112坪
駐車場設備
あり 収容台数70台
エレベーター
あり 2基
空調設備
個別方式
基準天井高
2,550mm

金沢フコク生命駅前ビルの公開募集区画

階数 面積 賃料(共益費含) 預託金 入居可能日 一括請求リスト
7階 19.97坪(66.017㎡) 未定未定/坪 未定未定/坪 即日
9階 42.71坪(141.191㎡) 未定未定/坪 未定未定/坪 即日
10階 25.23坪(83.405㎡) 未定未定/坪 未定未定/坪 即日
階数
7階
面積
19.97坪(66.017㎡)
賃料(共益費含)
未定 未定/坪
預託金
未定 未定/坪
入居可能日
即日
一括請求リスト
階数
9階
面積
42.71坪(141.191㎡)
賃料(共益費含)
未定 未定/坪
預託金
未定 未定/坪
入居可能日
即日
一括請求リスト
階数
10階
面積
25.23坪(83.405㎡)
賃料(共益費含)
未定 未定/坪
預託金
未定 未定/坪
入居可能日
即日
一括請求リスト

※募集フロアや面積、賃貸条件、設備等は状況により変更になる場合があります。
※(案)のフロアは分割または一括貸の面積例です。
※賃貸条件の上段は月額、下段は坪単価を表示します。
※賃料、共益費は別途消費税の対象となります。
※掲載写真や図面(パース含む)が現況と異なる場合は現況を優先します。
※ご成約時は規定の仲介手数料を申し受けます。

金沢フコク生命駅前ビルの周辺地図

オフィス探しで
こんなお悩み
ありませんか?
  • 物件を探す時間が無い
  • なかなか良い物件が
    見つからない
  • プロ目線で物件を
    提案してほしい

約60,000棟の
登録物件の中から
オフィス仲介のプロが
理想のオフィス探しを
徹底サポートいたします。

チェックした物件を