0120-534-011

受付時間:8:30〜17:30(土日祝日は除く)

川久センタービルの建物情報

お問い合わせ番号:009-44391
川久センタービル 外観1
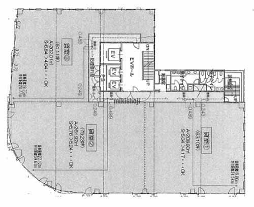
川久センタービル 平面1
川久センタービル 外観9
川久センタービル 平面1
所在地
大阪市淀川区西中島2-12-11
最寄駅
    西中島南方駅(地下鉄御堂筋線) 2番口 5分
    南方駅(阪急京都本線) みなみ西口 6分
    新大阪駅(地下鉄御堂筋線) 7番口 14分
竣工
1996年 4月(リニューアル:2024年 7月)
規模
地上8階建
延床面積
1,901坪
基準階面積
203坪
駐車場設備
あり 収容台数7台
エレベーター
あり 3基
空調設備
個別方式
基準天井高
2,580mm
基準床荷重
300kg/㎡

川久センタービルの公開募集区画

階数 面積 賃料(共益費含) 預託金 入居可能日 一括請求リスト
7階 207.77坪(686.846㎡) 3,532,090円17,000円/坪 21,192,540円102,000円/坪 2026.07上旬
階数
7階
面積
207.77坪(686.846㎡)
賃料(共益費含)
3,532,090円 17,000円/坪
預託金
21,192,540円 102,000円/坪
入居可能日
2026.07上旬
一括請求リスト

※募集フロアや面積、賃貸条件、設備等は状況により変更になる場合があります。
※(案)のフロアは分割または一括貸の面積例です。
※賃貸条件の上段は月額、下段は坪単価を表示します。
※賃料、共益費は別途消費税の対象となります。
※掲載写真や図面(パース含む)が現況と異なる場合は現況を優先します。
※ご成約時は規定の仲介手数料を申し受けます。

川久センタービルの周辺地図

オフィス探しで
こんなお悩み
ありませんか?
  • 物件を探す時間が無い
  • なかなか良い物件が
    見つからない
  • プロ目線で物件を
    提案してほしい

約60,000棟の
登録物件の中から
オフィス仲介のプロが
理想のオフィス探しを
徹底サポートいたします。

チェックした物件を