0120-38-8127

受付時間:8:30〜17:30(土日祝日は除く)

サンメモリアの建物情報

お問い合わせ番号:001-00173
サンメモリア 外観1
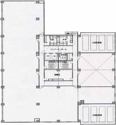
サンメモリア 平面1
サンメモリア 外観9
サンメモリア 平面1
所在地
札幌市中央区北3条西1-1-11
最寄駅
    さっぽろ駅(地下鉄南北線・地下鉄東豊線) 22番口 2分
    大通駅(地下鉄南北線・地下鉄東西線・地下鉄東豊線) 31番口 6分
    札幌駅(JR) 東通り南口 8分
竣工
1987年 5月(リニューアル:2022年 4月)
規模
地上9階/地下1階建
延床面積
3,414坪
基準階面積
276坪
駐車場設備
あり 収容台数133台
エレベーター
あり 3基
空調設備
個別方式
基準天井高
2,500mm
基準床荷重
300kg/㎡

サンメモリアの公開募集区画

階数 面積 賃料(共益費含) 預託金 入居可能日 一括請求リスト
9階 22.058坪(72.92㎡) 相談相談/坪 相談相談/坪 2026.03中旬
階数
9階
面積
22.058坪(72.92㎡)
賃料(共益費含)
相談 相談/坪
預託金
相談 相談/坪
入居可能日
2026.03中旬
一括請求リスト

※募集フロアや面積、賃貸条件、設備等は状況により変更になる場合があります。
※(案)のフロアは分割または一括貸の面積例です。
※賃貸条件の上段は月額、下段は坪単価を表示します。
※賃料、共益費は別途消費税の対象となります。
※掲載写真や図面(パース含む)が現況と異なる場合は現況を優先します。
※ご成約時は規定の仲介手数料を申し受けます。

サンメモリアの周辺地図

オフィス探しで
こんなお悩み
ありませんか?
  • 物件を探す時間が無い
  • なかなか良い物件が
    見つからない
  • プロ目線で物件を
    提案してほしい

約60,000棟の
登録物件の中から
オフィス仲介のプロが
理想のオフィス探しを
徹底サポートいたします。

チェックした物件を