0120-38-8127

受付時間:8:30〜17:30(土日祝日は除く)

第3弘安ビルの建物情報

お問い合わせ番号:001-00229
第3弘安ビル 外観1
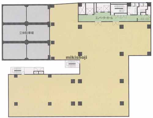
第3弘安ビル 平面1
第3弘安ビル 外観9
第3弘安ビル 平面1
所在地
札幌市中央区南7条西1-13
最寄駅
    豊水すすきの駅(地下鉄東豊線) 7番口 6分
    中島公園駅(地下鉄南北線) 1番口 8分
    すすきの駅(地下鉄南北線・市電山鼻線) 3番口 12分
竣工
1993年 9月
規模
地上9階建
延床面積
2,750坪
基準階面積
320坪
駐車場設備
あり 収容台数420台
エレベーター
あり 3基
空調設備
セントラル方式
基準天井高
2,650mm
基準床荷重
400kg/㎡

第3弘安ビルの公開募集区画

階数 面積 賃料(共益費含) 預託金 入居可能日 一括請求リスト
8階 276.57坪(914.285㎡) 2,765,700円10,000円/坪 11,615,940円42,000円/坪 2026.07上旬
8階(案) 209.83坪(693.656㎡) 2,098,300円10,000円/坪 8,812,860円42,000円/坪 入居日相談
8階(案) 66.74坪(220.629㎡) 667,400円10,000円/坪 2,803,080円42,000円/坪 入居日相談
階数
8階
面積
276.57坪(914.285㎡)
賃料(共益費含)
2,765,700円 10,000円/坪
預託金
11,615,940円 42,000円/坪
入居可能日
2026.07上旬
一括請求リスト
階数
8階(案)
面積
209.83坪(693.656㎡)
賃料(共益費含)
2,098,300円 10,000円/坪
預託金
8,812,860円 42,000円/坪
入居可能日
入居日相談
一括請求リスト
階数
8階(案)
面積
66.74坪(220.629㎡)
賃料(共益費含)
667,400円 10,000円/坪
預託金
2,803,080円 42,000円/坪
入居可能日
入居日相談
一括請求リスト

※募集フロアや面積、賃貸条件、設備等は状況により変更になる場合があります。
※(案)のフロアは分割または一括貸の面積例です。
※賃貸条件の上段は月額、下段は坪単価を表示します。
※賃料、共益費は別途消費税の対象となります。
※掲載写真や図面(パース含む)が現況と異なる場合は現況を優先します。
※ご成約時は規定の仲介手数料を申し受けます。

第3弘安ビルの周辺地図

第3弘安ビルのビル概要

第3弘安ビルは、札幌市中央区南7条西1丁目に所在する地上9階建てのオフィスビルです。1993年9月竣工、基準階面積は約320坪、延床面積は約2,750坪という、周辺エリアでも規模のある建物です。地下鉄東豊線豊水すすきの駅から徒歩6分、南北線中島公園駅からも徒歩圏内の立地にあります。事務所移転において、まとまったフロア面積を重視する企業のビジネス拠点として機能します。視認性の高い外観を備え、都心部へのアクセス性と安定した管理体制が整った賃貸オフィス仕様の物件です。

オフィス探しで
こんなお悩み
ありませんか?
  • 物件を探す時間が無い
  • なかなか良い物件が
    見つからない
  • プロ目線で物件を
    提案してほしい

約60,000棟の
登録物件の中から
オフィス仲介のプロが
理想のオフィス探しを
徹底サポートいたします。

チェックした物件を