0120-38-8127

受付時間:8:30〜17:30(土日祝日は除く)

商工中金・第一生命秋田ビルの建物情報

お問い合わせ番号:002-10162
商工中金・第一生命秋田ビル 外観1
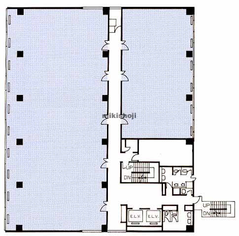
商工中金・第一生命秋田ビル 平面1
商工中金・第一生命秋田ビル 外観9
商工中金・第一生命秋田ビル 平面1
所在地
秋田市中通2-4-19
最寄駅
    秋田駅(JR) 西口 5分
竣工
1987年 3月
規模
地上10階建
延床面積
2,461坪
基準階面積
171坪
駐車場設備
あり 収容台数64台
エレベーター
あり 2基
空調設備
個別・セントラル方式
基準天井高
2,500mm
基準床荷重
300kg/㎡

商工中金・第一生命秋田ビルの公開募集区画

階数 面積 賃料(共益費含) 預託金 入居可能日 一括請求リスト
4階 16.81坪(55.57㎡) 相談相談/坪 相談相談/坪 即日
6階 16.81坪(55.57㎡) 相談相談/坪 相談相談/坪 2026.06下旬
7階 23.934坪(79.121㎡) 相談相談/坪 相談相談/坪 即日
8階 15.53坪(51.339㎡) 相談相談/坪 相談相談/坪 即日
階数
4階
面積
16.81坪(55.57㎡)
賃料(共益費含)
相談 相談/坪
預託金
相談 相談/坪
入居可能日
即日
一括請求リスト
階数
6階
面積
16.81坪(55.57㎡)
賃料(共益費含)
相談 相談/坪
預託金
相談 相談/坪
入居可能日
2026.06下旬
一括請求リスト
階数
7階
面積
23.934坪(79.121㎡)
賃料(共益費含)
相談 相談/坪
預託金
相談 相談/坪
入居可能日
即日
一括請求リスト
階数
8階
面積
15.53坪(51.339㎡)
賃料(共益費含)
相談 相談/坪
預託金
相談 相談/坪
入居可能日
即日
一括請求リスト

※募集フロアや面積、賃貸条件、設備等は状況により変更になる場合があります。
※(案)のフロアは分割または一括貸の面積例です。
※賃貸条件の上段は月額、下段は坪単価を表示します。
※賃料、共益費は別途消費税の対象となります。
※掲載写真や図面(パース含む)が現況と異なる場合は現況を優先します。
※ご成約時は規定の仲介手数料を申し受けます。

商工中金・第一生命秋田ビルの周辺地図

商工中金・第一生命秋田ビルのビル概要

商工中金・第一生命秋田ビルは、秋田市中通に所在する地上10階建てのオフィスビルです。1987年3月に竣工し、JR「秋田駅」西口から徒歩5分という優れた交通利便性を備えています。延床面積は約2,461坪、基準階面積は約171坪の規模を誇り、秋田駅前エリアにおける主要なビジネス拠点として機能します。事務所移転において、高い視認性と都市機能が集積する立地環境が、業務の機動力と企業信頼性の向上に寄与する仕様です。

オフィス探しで
こんなお悩み
ありませんか?
  • 物件を探す時間が無い
  • なかなか良い物件が
    見つからない
  • プロ目線で物件を
    提案してほしい

約60,000棟の
登録物件の中から
オフィス仲介のプロが
理想のオフィス探しを
徹底サポートいたします。

チェックした物件を