0120-534-011

受付時間:8:30〜17:30(土日祝日は除く)

Daiwa上大岡ビルの建物情報

お問い合わせ番号:007-40024
Daiwa上大岡ビル 外観1
Daiwa上大岡ビル 平面1
Daiwa上大岡ビル 外観9
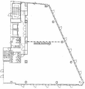
Daiwa上大岡ビル 平面1
所在地
横浜市港南区上大岡西1-14-6
最寄駅
    上大岡駅(横浜市営ブルーライン/京急本線) 1番口 1分
    上大岡駅(京急本線) 西口 2分
    港南中央駅(横浜市営ブルーライン) 2番口 15分
竣工
2011年 5月
規模
地上7階/地下2階建
延床面積
1,171坪
基準階面積
115坪
駐車場設備
あり 収容台数15台
エレベーター
あり 2基
空調設備
個別方式
基準天井高
2,700mm
基準床荷重
500kg/㎡(OA)

Daiwa上大岡ビルの公開募集区画

階数 面積 賃料(共益費含) 預託金 入居可能日 一括請求リスト
3階 49.79坪(164.596㎡) 相談相談/坪 相談相談/坪 即日
階数
3階
面積
49.79坪(164.596㎡)
賃料(共益費含)
相談 相談/坪
預託金
相談 相談/坪
入居可能日
即日
一括請求リスト

※募集フロアや面積、賃貸条件、設備等は状況により変更になる場合があります。
※(案)のフロアは分割または一括貸の面積例です。
※賃貸条件の上段は月額、下段は坪単価を表示します。
※賃料、共益費は別途消費税の対象となります。
※掲載写真や図面(パース含む)が現況と異なる場合は現況を優先します。
※ご成約時は規定の仲介手数料を申し受けます。

Daiwa上大岡ビルの周辺地図

Daiwa上大岡ビルのビル概要

Daiwa上大岡ビルは、2011年竣工、地上7階・地下2階建ての上大岡エリアを代表する築浅のハイグレードオフィスビルです。上大岡駅から徒歩1~2分という、地域の中枢に位置する圧倒的な機動力を誇ります。延床面積2,117坪、基準階面積は約115坪のスペックを有し、2010年代竣工ならではの現代的な外観と優れたビル設備は、企業の信頼性向上に大きく寄与する仕様です。利便施設が集積する駅前環境において、質の高い就業環境を提供します。

オフィス探しで
こんなお悩み
ありませんか?
  • 物件を探す時間が無い
  • なかなか良い物件が
    見つからない
  • プロ目線で物件を
    提案してほしい

約60,000棟の
登録物件の中から
オフィス仲介のプロが
理想のオフィス探しを
徹底サポートいたします。

チェックした物件を