0120-38-8127

受付時間:8:30〜17:30(土日祝日は除く)

ミズノビルの建物情報

お問い合わせ番号:008-02037
ミズノビル 外観1
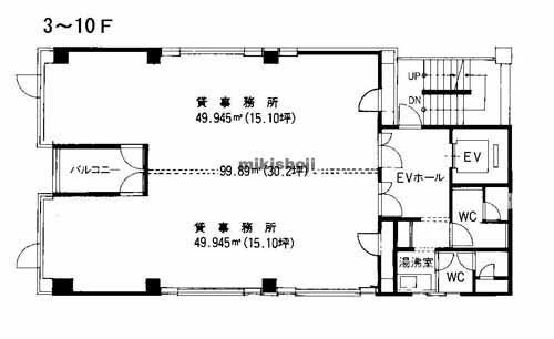
ミズノビル 平面1
ミズノビル エントランス1
ミズノビル エレベーターホール1
ミズノビル エレベーターホール2
ミズノビル エレベーターホール3
ミズノビル 水回り1
ミズノビル 水回り2
ミズノビル 外観9
ミズノビル 平面1
ミズノビル エントランス1
ミズノビル エレベーターホール1
ミズノビル エレベーターホール2
ミズノビル エレベーターホール3
ミズノビル 水回り1
ミズノビル 水回り2
所在地
名古屋市中区金山1-9-19
最寄駅
    金山駅(名古屋市営名城線・名港線/名鉄名古屋本線) 6番口 4分
    金山駅(JR) 北口 5分
    東別院駅(名古屋市営名城線) 3番口 10分
竣工
1989年 2月
規模
地上10階建
延床面積
145坪
基準階面積
30坪
駐車場設備
あり 収容台数35台
エレベーター
あり 1基
空調設備
個別方式
基準天井高
2,450mm

ミズノビルの公開募集区画

階数 面積 賃料(共益費含) 預託金 入居可能日 一括請求リスト
1階 20.42坪(67.504㎡) 相談相談/坪 相談相談/坪 2026.06上旬
3階 15.1坪(49.918㎡) 相談相談/坪 相談相談/坪 即日
階数
1階
面積
20.42坪(67.504㎡)
賃料(共益費含)
相談 相談/坪
預託金
相談 相談/坪
入居可能日
2026.06上旬
一括請求リスト
階数
3階
面積
15.1坪(49.918㎡)
賃料(共益費含)
相談 相談/坪
預託金
相談 相談/坪
入居可能日
即日
一括請求リスト

※募集フロアや面積、賃貸条件、設備等は状況により変更になる場合があります。
※(案)のフロアは分割または一括貸の面積例です。
※賃貸条件の上段は月額、下段は坪単価を表示します。
※賃料、共益費は別途消費税の対象となります。
※掲載写真や図面(パース含む)が現況と異なる場合は現況を優先します。
※ご成約時は規定の仲介手数料を申し受けます。

ミズノビルの周辺地図

ミズノビルのビル概要

ミズノビルは、1989年竣工、地上10階建ての金山エリアに位置するオフィスビルです。総合ターミナルである金山駅から徒歩4〜5分という抜群のアクセス性を誇り、複数路線を利用した広域への機動力を提供します。基準階面積は約30坪とコンパクトながら、10階建てのスマートな外観は視認性も良好です。駅前エリアの利便施設を日常的に活用できるため、実務効率とコストパフォーマンスを重視する企業の拠点として最適な環境を整えています。

オフィス探しで
こんなお悩み
ありませんか?
  • 物件を探す時間が無い
  • なかなか良い物件が
    見つからない
  • プロ目線で物件を
    提案してほしい

約60,000棟の
登録物件の中から
オフィス仲介のプロが
理想のオフィス探しを
徹底サポートいたします。

チェックした物件を