0120-38-8127

受付時間:8:30〜17:30(土日祝日は除く)

カミヤビルの建物情報

お問い合わせ番号:008-00322
カミヤビル 外観1
カミヤビル 平面1
カミヤビル 外観9
カミヤビル 平面1
所在地
名古屋市中区大須4-11-50
最寄駅
    上前津駅(名古屋市営名城線・鶴舞線) 10番口 1分
    矢場町駅(名古屋市営名城線) 4番口 9分
    鶴舞駅(JR) 公園口 15分
竣工
1986年 3月(リニューアル:2002年 6月)
規模
地上9階建
延床面積
933坪
基準階面積
72坪
駐車場設備
あり 収容台数32台
エレベーター
あり 1基
空調設備
個別方式
基準天井高
2,370mm

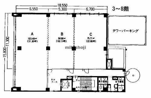
カミヤビルの公開募集区画

階数 面積 賃料(共益費含) 預託金 入居可能日 一括請求リスト
5階 22.9坪(75.703㎡) 286,250円12,500円/坪 1,236,600円54,000円/坪 2026.05上旬
階数
5階
面積
22.9坪(75.703㎡)
賃料(共益費含)
286,250円 12,500円/坪
預託金
1,236,600円 54,000円/坪
入居可能日
2026.05上旬
一括請求リスト

※募集フロアや面積、賃貸条件、設備等は状況により変更になる場合があります。
※(案)のフロアは分割または一括貸の面積例です。
※賃貸条件の上段は月額、下段は坪単価を表示します。
※賃料、共益費は別途消費税の対象となります。
※掲載写真や図面(パース含む)が現況と異なる場合は現況を優先します。
※ご成約時は規定の仲介手数料を申し受けます。

カミヤビルの周辺地図

カミヤビルのビル概要

カミヤビルは、名古屋市中区大須4丁目に所在する、1986年3月竣工の地上9階建て賃貸オフィスビルです。上前津駅10番口から徒歩1分、矢場町駅から徒歩9分、JR鶴舞駅からも徒歩15分というアクセスの良さを有します。延床面積933坪、基準階面積72坪の規模を誇り、事務所移転において名城線・鶴舞線の結節点での拠点構築を可能にします。ビジネス拠点として、大津通に面した視認性の高さは企業の認知度向上に寄与する仕様です。現在のテナント募集において、周辺の活気ある商業環境と、地下鉄駅出口すぐという圧倒的な利便性が、ワーカーの機動力と利便性を同時に実現します。

オフィス探しで
こんなお悩み
ありませんか?
  • 物件を探す時間が無い
  • なかなか良い物件が
    見つからない
  • プロ目線で物件を
    提案してほしい

約60,000棟の
登録物件の中から
オフィス仲介のプロが
理想のオフィス探しを
徹底サポートいたします。

チェックした物件を