0120-38-8127

受付時間:8:30〜17:30(土日祝日は除く)

新大阪西浦ビルの建物情報

お問い合わせ番号:009-00957
新大阪西浦ビル 外観1
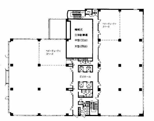
新大阪西浦ビル 平面1
新大阪西浦ビル 外観9
新大阪西浦ビル 平面1
所在地
大阪市淀川区西宮原2-7-38
最寄駅
    新大阪駅(地下鉄御堂筋線) 4番口 12分
    三国駅(阪急宝塚本線) 南出口 12分
    新大阪駅(JR) 西口 14分
竣工
1992年10月(リニューアル:2014年)
規模
地上8階/地下1階建
延床面積
3,288坪
基準階面積
313坪
駐車場設備
あり 収容台数58台
エレベーター
あり 4基
空調設備
個別方式
基準天井高
2,500mm
基準床荷重
300kg/㎡(OA)

新大阪西浦ビルの公開募集区画

階数 面積 賃料(共益費含) 預託金 入居可能日 一括請求リスト
3階 45.48坪(150.348㎡) 386,580円8,500円/坪 2,728,800円60,000円/坪 即日
階数
3階
面積
45.48坪(150.348㎡)
賃料(共益費含)
386,580円 8,500円/坪
預託金
2,728,800円 60,000円/坪
入居可能日
即日
一括請求リスト

※募集フロアや面積、賃貸条件、設備等は状況により変更になる場合があります。
※(案)のフロアは分割または一括貸の面積例です。
※賃貸条件の上段は月額、下段は坪単価を表示します。
※賃料、共益費は別途消費税の対象となります。
※掲載写真や図面(パース含む)が現況と異なる場合は現況を優先します。
※ご成約時は規定の仲介手数料を申し受けます。

新大阪西浦ビルの周辺地図

オフィス探しで
こんなお悩み
ありませんか?
  • 物件を探す時間が無い
  • なかなか良い物件が
    見つからない
  • プロ目線で物件を
    提案してほしい

約60,000棟の
登録物件の中から
オフィス仲介のプロが
理想のオフィス探しを
徹底サポートいたします。

チェックした物件を