0120-534-011

受付時間:8:30〜17:30(土日祝日は除く)

長堀ビルの建物情報

お問い合わせ番号:009-01642
長堀ビル 外観1
長堀ビル 平面1
長堀ビル 外観9
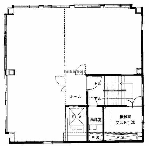
長堀ビル 平面1
所在地
大阪市中央区南船場1-17-21
最寄駅
    長堀橋駅(地下鉄堺筋線・長堀鶴見緑地線) 2-B口 2分
    堺筋本町駅(地下鉄堺筋線・中央線) 7番口 7分
    近鉄日本橋駅(近鉄難波線) 6番口 14分
竣工
1974年 2月
規模
地上6階建
延床面積
426坪
基準階面積
28坪
駐車場設備
なし
エレベーター
あり 1基
空調設備
個別方式

長堀ビルの公開募集区画

階数 面積 賃料(共益費含) 預託金 入居可能日 一括請求リスト
2階 20坪(66.116㎡) 未定未定/坪 未定未定/坪 即日
3階 20坪(66.116㎡) 未定未定/坪 未定未定/坪 即日
階数
2階
面積
20坪(66.116㎡)
賃料(共益費含)
未定 未定/坪
預託金
未定 未定/坪
入居可能日
即日
一括請求リスト
階数
3階
面積
20坪(66.116㎡)
賃料(共益費含)
未定 未定/坪
預託金
未定 未定/坪
入居可能日
即日
一括請求リスト

※募集フロアや面積、賃貸条件、設備等は状況により変更になる場合があります。
※(案)のフロアは分割または一括貸の面積例です。
※賃貸条件の上段は月額、下段は坪単価を表示します。
※賃料、共益費は別途消費税の対象となります。
※掲載写真や図面(パース含む)が現況と異なる場合は現況を優先します。
※ご成約時は規定の仲介手数料を申し受けます。

長堀ビルの周辺地図

オフィス探しで
こんなお悩み
ありませんか?
  • 物件を探す時間が無い
  • なかなか良い物件が
    見つからない
  • プロ目線で物件を
    提案してほしい

約60,000棟の
登録物件の中から
オフィス仲介のプロが
理想のオフィス探しを
徹底サポートいたします。

チェックした物件を