0120-534-011

受付時間:8:30〜17:30(土日祝日は除く)

札幌市白石区の
貸事務所(賃貸事務所)・賃貸オフィス物件一覧

検索結果24(14棟)
1
1

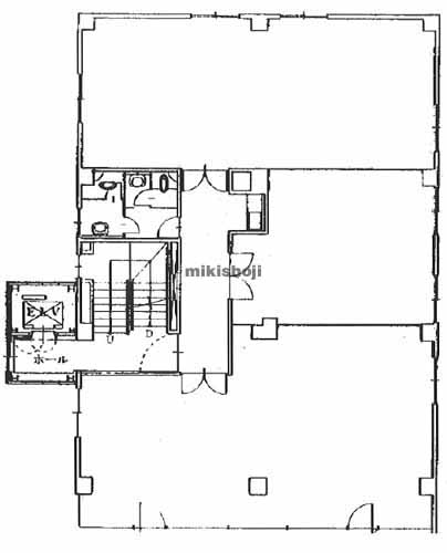
プログレスシティ菊水

お問い合わせ番号:001-10754

白石区のプログレスシティ菊水 外観1
白石区のプログレスシティ菊水 平面1
白石区のプログレスシティ菊水 外観1
白石区のプログレスシティ菊水 平面1
掲載面積10坪
住所
札幌市白石区菊水9条2-5-5
最寄駅
菊水駅(地下鉄東西線) 4番口 12分
苗穂駅(JR) 13分
竣工
1989年 3月
規模
地上7階建
プログレスシティ菊水は、札幌市白石区菊水9条2丁目に位置する1989年3月竣工の地上7階建てビルです。地下鉄東西線の菊水駅から徒歩12分、JR苗穂駅からも徒歩13分の距離にあり、中央区に近い白石区の商
階数 面積 賃料(共益費含) 預託金 入居可能日 一括請求リスト
2階 10.23坪(33.818㎡) 73,018円7,138円/坪 0円0円/坪 即日
階数
2階
面積
10.23坪(33.818㎡)
賃料(共益費含)
73,018円 7,138円/坪
預託金
0円 0円/坪
入居可能日
即日
一括請求リスト

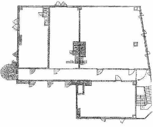
KKS東札幌ビル

お問い合わせ番号:001-01222

白石区のKKS東札幌ビル 外観1
白石区のKKS東札幌ビル 平面1
白石区のKKS東札幌ビル 外観1
白石区のKKS東札幌ビル 平面1
掲載面積14坪~92坪
住所
札幌市白石区東札幌3条5-3-24
最寄駅
白石駅(地下鉄東西線) 1番口 2分
東札幌駅(地下鉄東西線) 1番口 14分
竣工
1985年 9月
規模
地上8階/地下1階建
KKS東札幌ビルは、札幌市白石区東札幌3条に所在する地上8階、地下1階建てのオフィスビルです。1985年9月竣工、延床面積は約1,756平米、基準階面積は約54平米を有します。地下鉄東西線の白石駅から
階数 面積 賃料(共益費含) 預託金 入居可能日 一括請求リスト
2階 92.37坪(305.357㎡) 923,700円10,000円/坪 5,542,200円60,000円/坪 即日
6階 54.96坪(181.687㎡) 549,600円10,000円/坪 3,297,600円60,000円/坪 即日
6階(案) 25.35坪(83.802㎡) 253,500円10,000円/坪 1,521,000円60,000円/坪 入居日相談
6階(案) 15.23坪(50.347㎡) 152,300円10,000円/坪 913,800円60,000円/坪 入居日相談
6階(案) 14.39坪(47.57㎡) 143,900円10,000円/坪 863,400円60,000円/坪 入居日相談
階数
2階
面積
92.37坪(305.357㎡)
賃料(共益費含)
923,700円 10,000円/坪
預託金
5,542,200円 60,000円/坪
入居可能日
即日
一括請求リスト
階数
6階
面積
54.96坪(181.687㎡)
賃料(共益費含)
549,600円 10,000円/坪
預託金
3,297,600円 60,000円/坪
入居可能日
即日
一括請求リスト
階数
6階(案)
面積
25.35坪(83.802㎡)
賃料(共益費含)
253,500円 10,000円/坪
預託金
1,521,000円 60,000円/坪
入居可能日
入居日相談
一括請求リスト
階数
6階(案)
面積
15.23坪(50.347㎡)
賃料(共益費含)
152,300円 10,000円/坪
預託金
913,800円 60,000円/坪
入居可能日
入居日相談
一括請求リスト
階数
6階(案)
面積
14.39坪(47.57㎡)
賃料(共益費含)
143,900円 10,000円/坪
預託金
863,400円 60,000円/坪
入居可能日
入居日相談
一括請求リスト

This-1ビル

お問い合わせ番号:001-01230

白石区のThis-1ビル 外観1
白石区のThis-1ビル 平面1
白石区のThis-1ビル 外観1
白石区のThis-1ビル 平面1
掲載面積23坪~26坪
住所
札幌市白石区南郷通1北1-19
最寄駅
白石駅(地下鉄東西線) 7番口 1分
竣工
1987年11月
規模
地上6階建
This-1ビルは、札幌市白石区南郷通1丁目に所在する地上6階建ての賃貸オフィスビルです。1987年11月竣工、延床面積は約800平米、基準階面積は約87平米の構成です。地下鉄東西線の白石駅から徒歩1
階数 面積 賃料(共益費含) 預託金 入居可能日 一括請求リスト
3階 23.3坪(77.025㎡) 233,000円10,000円/坪 838,800円36,000円/坪 即日
3階 26.6坪(87.934㎡) 266,000円10,000円/坪 957,600円36,000円/坪 即日
階数
3階
面積
23.3坪(77.025㎡)
賃料(共益費含)
233,000円 10,000円/坪
預託金
838,800円 36,000円/坪
入居可能日
即日
一括請求リスト
階数
3階
面積
26.6坪(87.934㎡)
賃料(共益費含)
266,000円 10,000円/坪
預託金
957,600円 36,000円/坪
入居可能日
即日
一括請求リスト

浅沼ビル

お問い合わせ番号:001-01234

白石区の浅沼ビル 外観1
白石区の浅沼ビル 平面1
白石区の浅沼ビル 外観1
白石区の浅沼ビル 平面1
掲載面積15坪
住所
札幌市白石区中央2条1-5-50
最寄駅
東札幌駅(地下鉄東西線) 1番口 15分
竣工
1989年 5月
規模
地上4階建
浅沼ビルは、札幌市白石区中央2条に位置する1989年5月竣工の地上4階建てオフィスビルです。延床面積は約270平米、基準階面積は約70平米を有します。地下鉄東西線の東札幌駅から徒歩15分に所在し、周辺
階数 面積 賃料(共益費含) 預託金 入居可能日 一括請求リスト
3階 15坪(49.587㎡) 93,000円6,200円/坪 225,000円15,000円/坪 即日
階数
3階
面積
15坪(49.587㎡)
賃料(共益費含)
93,000円 6,200円/坪
預託金
225,000円 15,000円/坪
入居可能日
即日
一括請求リスト

第3タヂカビル

お問い合わせ番号:001-01237

白石区の第3タヂカビル 外観1
白石区の第3タヂカビル 平面1
白石区の第3タヂカビル 外観1
白石区の第3タヂカビル 平面1
掲載面積25坪~101坪
住所
札幌市白石区南郷通8北2-25
最寄駅
南郷7丁目駅(地下鉄東西線) 4番口 3分
南郷13丁目駅(地下鉄東西線) 1番口 9分
竣工
1993年 2月
規模
地上10階建
第3タヂカビルは、札幌市白石区南郷通8丁目に所在する地上10階建てのオフィスビルです。1993年2月竣工、延床面積は約2,268平米、基準階面積は約89平米の規模を有します。地下鉄東西線の南郷7丁目駅
階数 面積 賃料(共益費含) 預託金 入居可能日 一括請求リスト
1階 101.73坪(336.299㎡) 1,068,165円10,500円/坪 6,103,800円60,000円/坪 即日
6階 25.01坪(82.678㎡) 187,575円7,500円/坪 375,150円15,000円/坪 即日
8階 25.01坪(82.678㎡) 187,575円7,500円/坪 375,150円15,000円/坪 即日
階数
1階
面積
101.73坪(336.299㎡)
賃料(共益費含)
1,068,165円 10,500円/坪
預託金
6,103,800円 60,000円/坪
入居可能日
即日
一括請求リスト
階数
6階
面積
25.01坪(82.678㎡)
賃料(共益費含)
187,575円 7,500円/坪
預託金
375,150円 15,000円/坪
入居可能日
即日
一括請求リスト
階数
8階
面積
25.01坪(82.678㎡)
賃料(共益費含)
187,575円 7,500円/坪
預託金
375,150円 15,000円/坪
入居可能日
即日
一括請求リスト

三晃ビル

お問い合わせ番号:001-01409

白石区の三晃ビル 外観1
白石区の三晃ビル 平面1
白石区の三晃ビル 外観1
白石区の三晃ビル 平面1
掲載面積30坪
住所
札幌市白石区中央2条3-1-53
最寄駅
東札幌駅(地下鉄東西線) 1番口 17分
白石駅(地下鉄東西線) 1番口 20分
竣工
1976年11月
規模
地上4階建
三晃ビルは、札幌市白石区中央2条に位置する1976年11月竣工の地上4階建てビルです。延床面積は約260平米、基準階面積は約65平米を有します。地下鉄東西線の東札幌駅から徒歩17分、白石駅からも徒歩2
階数 面積 賃料(共益費含) 預託金 入居可能日 一括請求リスト
2階 30坪(99.174㎡) 165,000円5,500円/坪 423,000円14,100円/坪 即日
階数
2階
面積
30坪(99.174㎡)
賃料(共益費含)
165,000円 5,500円/坪
預託金
423,000円 14,100円/坪
入居可能日
即日
一括請求リスト

第1小竹ビル

お問い合わせ番号:001-01416

白石区の第1小竹ビル 外観1
白石区の第1小竹ビル 平面1
白石区の第1小竹ビル 外観1
白石区の第1小竹ビル 平面1
掲載面積103坪
住所
札幌市白石区東札幌3条6-1-2
最寄駅
白石駅(地下鉄東西線) 5番口 1分
東札幌駅(地下鉄東西線) 1番口 14分
竣工
1984年 4月
規模
地上10階/地下1階建
第1小竹ビルは、札幌市白石区東札幌3条に位置する地上10階、地下1階建てのオフィスビルです。1984年4月竣工、延床面積は約1,141平米、基準階面積は約129平米の規模を有します。地下鉄東西線の白石
階数 面積 賃料(共益費含) 預託金 入居可能日 一括請求リスト
1階 103.83坪(343.241㎡) 900,000円8,669円/坪 2,700,000円26,005円/坪 即日
階数
1階
面積
103.83坪(343.241㎡)
賃料(共益費含)
900,000円 8,669円/坪
預託金
2,700,000円 26,005円/坪
入居可能日
即日
一括請求リスト

石野ビル

お問い合わせ番号:001-01418

白石区の石野ビル 外観1
白石区の石野ビル 平面1
白石区の石野ビル 外観1
白石区の石野ビル 平面1
掲載面積36坪
住所
札幌市白石区中央1条3-1-33
最寄駅
東札幌駅(地下鉄東西線) 1番口 15分
竣工
1975年 6月
規模
地上2階建
石野ビルは、札幌市白石区中央1条に所在する1975年6月竣工の地上2階建てビルです。地下鉄東西線の東札幌駅から徒歩15分に位置し、延床面積は約300平米の規模を有します。主要幹線道路に近いエリアに立地
階数 面積 賃料(共益費含) 預託金 入居可能日 一括請求リスト
2階 36坪(119.009㎡) 190,000円5,278円/坪 540,000円15,000円/坪 即日
階数
2階
面積
36坪(119.009㎡)
賃料(共益費含)
190,000円 5,278円/坪
預託金
540,000円 15,000円/坪
入居可能日
即日
一括請求リスト

第2タヂカビル

お問い合わせ番号:001-01454

白石区の第2タヂカビル 外観1
白石区の第2タヂカビル 平面1
白石区の第2タヂカビル 外観1
白石区の第2タヂカビル 平面1
掲載面積40坪
住所
札幌市白石区南郷通8南5-1
最寄駅
南郷7丁目駅(地下鉄東西線) 4番口 1分
南郷13丁目駅(地下鉄東西線) 1番口 10分
竣工
1984年
規模
地上12階建
第2タヂカビルは、札幌市白石区南郷通8丁目に位置する地上12階建てのビルです。1984年竣工。地下鉄東西線の南郷7丁目駅から徒歩1分という卓越した交通利便性を誇り、南郷13丁目駅からも徒歩10分でアク
階数 面積 賃料(共益費含) 預託金 入居可能日 一括請求リスト
2階 40.5坪(133.885㎡) 202,500円5,000円/坪 546,750円13,500円/坪 即日
階数
2階
面積
40.5坪(133.885㎡)
賃料(共益費含)
202,500円 5,000円/坪
預託金
546,750円 13,500円/坪
入居可能日
即日
一括請求リスト

プレジデンス・リーベ

お問い合わせ番号:001-01467

白石区のプレジデンス・リーベ 外観1
白石区のプレジデンス・リーベ 平面1
白石区のプレジデンス・リーベ 外観1
白石区のプレジデンス・リーベ 平面1
掲載面積7坪~14坪
住所
札幌市白石区南郷通8南4-7
最寄駅
南郷7丁目駅(地下鉄東西線) 4番口 1分
南郷13丁目駅(地下鉄東西線) 1番口 12分
竣工
1987年12月
規模
地上3階建
プレジデンス・リーベは、札幌市白石区南郷通8丁目に位置する1987年12月竣工の地上3階建てビルです。基準階面積は約100平米の規模を有します。地下鉄東西線「南郷7丁目駅」4番出口から徒歩1分という、
階数 面積 賃料(共益費含) 預託金 入居可能日 一括請求リスト
2階 7.453坪(24.638㎡) 85,000円11,405円/坪 240,000円32,202円/坪 即日
3階 14.628坪(48.357㎡) 110,000円7,521円/坪 300,000円20,509円/坪 即日
階数
2階
面積
7.453坪(24.638㎡)
賃料(共益費含)
85,000円 11,405円/坪
預託金
240,000円 32,202円/坪
入居可能日
即日
一括請求リスト
階数
3階
面積
14.628坪(48.357㎡)
賃料(共益費含)
110,000円 7,521円/坪
預託金
300,000円 20,509円/坪
入居可能日
即日
一括請求リスト

3Dコートアームス

お問い合わせ番号:001-01470

白石区の3Dコートアームス 外観1
白石区の3Dコートアームス 平面1
白石区の3Dコートアームス 外観1
白石区の3Dコートアームス 平面1
掲載面積16坪
住所
札幌市白石区東札幌2条5-8-21
最寄駅
白石駅(地下鉄東西線) 1番口 3分
東札幌駅(地下鉄東西線) 2番口 13分
竣工
1992年 8月
規模
地上3階建
3Dコートアームスは、札幌市白石区東札幌2条5丁目に位置する1992年8月竣工の地上3階建てビルです。延床面積は約1,030平米、基準階面積は約30坪(約100平米)の規模を有します。地下鉄東西線「白
階数 面積 賃料(共益費含) 預託金 入居可能日 一括請求リスト
3階 16坪(52.893㎡) 95,000円5,938円/坪 95,000円5,938円/坪 2026.05中旬
階数
3階
面積
16坪(52.893㎡)
賃料(共益費含)
95,000円 5,938円/坪
預託金
95,000円 5,938円/坪
入居可能日
2026.05中旬
一括請求リスト

白石ビル

お問い合わせ番号:001-01554

白石区の白石ビル 外観1
白石区の白石ビル 平面1
白石区の白石ビル 外観1
白石区の白石ビル 平面1
掲載面積12坪
住所
札幌市白石区本通9丁目北4-1
最寄駅
南郷7丁目駅(地下鉄東西線) 3番口 14分
南郷13丁目駅(地下鉄東西線) 1番口 15分
竣工
1988年 3月
規模
地上3階/地下1階建
白石ビルは、札幌市白石区本通9丁目に位置する1988年3月竣工の地上3階建てビルです。延床面積は約87平米の規模を有します。地下鉄東西線の南郷7丁目駅から徒歩14分、南郷13丁目駅からも徒歩15分とい
階数 面積 賃料(共益費含) 預託金 入居可能日 一括請求リスト
2階 12.64坪(41.785㎡) 51,400円4,067円/坪 102,800円8,133円/坪 入居日相談
階数
2階
面積
12.64坪(41.785㎡)
賃料(共益費含)
51,400円 4,067円/坪
預託金
102,800円 8,133円/坪
入居可能日
入居日相談
一括請求リスト

第五栄輪ビル

お問い合わせ番号:001-01556

白石区の第五栄輪ビル 外観1
白石区の第五栄輪ビル 平面1
白石区の第五栄輪ビル 外観1
白石区の第五栄輪ビル 平面1
掲載面積7坪~49坪
住所
札幌市白石区本通18丁目北1-1
最寄駅
南郷18丁目駅(地下鉄東西線) 2番口 8分
竣工
1970年 4月
規模
地上3階/地下1階建
第五栄輪ビルは、札幌市白石区本通18丁目北に位置する地上3階建てのオフィス物件です。1970年4月に竣工しました。地下鉄東西線南郷18丁目駅から徒歩8分の距離にあり、国道12号線に近接する地理的条件を
階数 面積 賃料(共益費含) 預託金 入居可能日 一括請求リスト
3階 49.912坪(164.999㎡) 193,000円3,868円/坪 450,000円9,016円/坪 即日
3階 7.87坪(26.017㎡) 47,500円6,037円/坪 114,000円14,486円/坪 即日
階数
3階
面積
49.912坪(164.999㎡)
賃料(共益費含)
193,000円 3,868円/坪
預託金
450,000円 9,016円/坪
入居可能日
即日
一括請求リスト
階数
3階
面積
7.87坪(26.017㎡)
賃料(共益費含)
47,500円 6,037円/坪
預託金
114,000円 14,486円/坪
入居可能日
即日
一括請求リスト

寿白石ビル

お問い合わせ番号:001-01580

白石区の寿白石ビル 外観1
白石区の寿白石ビル 平面1
白石区の寿白石ビル 外観1
白石区の寿白石ビル 平面1
掲載面積14坪
住所
札幌市白石区中央2条1-4-1
最寄駅
東札幌駅(地下鉄東西線) 1番口 16分
苗穂駅(JR) 22分
菊水駅(地下鉄東西線) 6番口 22分
竣工
1975年 3月
規模
地上3階/地下1階建
寿白石ビルは、札幌市白石区中央2条に所在する地上3階建てのビルです。1988年竣工、延床面積は約1,118平米、基準階面積は約29平米の構成となっています。地下鉄東西線の東札幌駅から徒歩16分に位置し
階数 面積 賃料(共益費含) 預託金 入居可能日 一括請求リスト
2階 14.819坪(48.989㎡) 50,000円3,375円/坪 100,000円6,749円/坪 2026.05下旬
2階 14.819坪(48.989㎡) 50,000円3,375円/坪 100,000円6,749円/坪 2026.05下旬
階数
2階
面積
14.819坪(48.989㎡)
賃料(共益費含)
50,000円 3,375円/坪
預託金
100,000円 6,749円/坪
入居可能日
2026.05下旬
一括請求リスト
階数
2階
面積
14.819坪(48.989㎡)
賃料(共益費含)
50,000円 3,375円/坪
預託金
100,000円 6,749円/坪
入居可能日
2026.05下旬
一括請求リスト
1
1

※募集フロアや面積、賃貸条件、設備等は状況により変更になる場合があります。
※(案)のフロアは分割または一括貸の面積例です。
※賃貸条件の上段は月額、下段は坪単価を表示します。
※賃料、共益費は別途消費税の対象となります。
※掲載写真や図面(パース含む)が現況と異なる場合は現況を優先します。
※ご成約時は規定の仲介手数料を申し受けます。

オフィス探しで
こんなお悩み
ありませんか?
  • 物件を探す時間が無い
  • なかなか良い物件が
    見つからない
  • プロ目線で物件を
    提案してほしい

約60,000棟の
登録物件の中から
オフィス仲介のプロが
理想のオフィス探しを
徹底サポートいたします。

チェックした物件を