0120-534-011

受付時間:8:30〜17:30(土日祝日は除く)

川合ビルの建物情報

お問い合わせ番号:007-00178
川合ビル 外観1
川合ビル 外観2
川合ビル 外観3
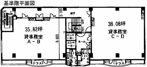
川合ビル 平面1
川合ビル エントランス1
川合ビル エレベーターホール1
川合ビル 外観9
川合ビル 外観2
川合ビル 外観3
川合ビル 平面3
川合ビル エントランス1
川合ビル エレベーターホール1
所在地
横浜市西区平沼1-6-7
最寄駅
    高島町駅(横浜市営ブルーライン) 1番口 5分
    戸部駅(京急本線) 6分
    横浜駅(JR) 東口 10分
竣工
1988年 1月
規模
地上5階建
延床面積
482坪
基準階面積
73坪
駐車場設備
あり 収容台数3台
エレベーター
あり 2基
空調設備
個別方式

川合ビルの公開募集区画

階数 面積 賃料(共益費含) 預託金 入居可能日 一括請求リスト
4階 15.81坪(52.265㎡) 205,660円13,009円/坪 949,200円60,038円/坪 入居日相談
階数
4階
面積
15.81坪(52.265㎡)
賃料(共益費含)
205,660円 13,009円/坪
預託金
949,200円 60,038円/坪
入居可能日
入居日相談
一括請求リスト

※募集フロアや面積、賃貸条件、設備等は状況により変更になる場合があります。
※(案)のフロアは分割または一括貸の面積例です。
※賃貸条件の上段は月額、下段は坪単価を表示します。
※賃料、共益費は別途消費税の対象となります。
※掲載写真や図面(パース含む)が現況と異なる場合は現況を優先します。
※ご成約時は規定の仲介手数料を申し受けます。

川合ビルの周辺地図

川合ビルのビル概要

川合ビルは、1988年竣工、地上5階建ての横浜市西区平沼に所在する賃貸オフィスビルです。地下鉄高島町駅から徒歩5分、横浜駅東口からも徒歩10分という交通利便性を備えています。基準階面積は約73坪の構成で、中規模なチームでの事務所移転において機能的な空間を提供する仕様です。平沼エリアの落ち着いた環境に位置しており、主要駅への良好なアクセスを維持しつつ、静穏な執務空間を確保できる点が魅力です。実用的な室内空間が、企業の着実な事業運営をサポートします。

オフィス探しで
こんなお悩み
ありませんか?
  • 物件を探す時間が無い
  • なかなか良い物件が
    見つからない
  • プロ目線で物件を
    提案してほしい

約60,000棟の
登録物件の中から
オフィス仲介のプロが
理想のオフィス探しを
徹底サポートいたします。

チェックした物件を