0120-534-011

受付時間:8:30〜17:30(土日祝日は除く)

S.C.城田ビルの建物情報

お問い合わせ番号:007-01909
S.C.城田ビル 外観1
S.C.城田ビル 平面1
S.C.城田ビル 外観9
S.C.城田ビル 平面1
所在地
横浜市都筑区仲町台1-27-15
最寄駅
    仲町台駅(横浜市営ブルーライン) 出口1 3分
竣工
2007年 6月
規模
地上2階建
延床面積
0坪
基準階面積
0坪
駐車場設備
なし
エレベーター
あり 1基
空調設備
個別方式

S.C.城田ビルの公開募集区画

階数 面積 賃料(共益費含) 預託金 入居可能日 一括請求リスト
2階 54.43坪(179.935㎡) 734,805円13,500円/坪 3,918,960円72,000円/坪 即日
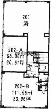
2階(案) 20.57坪(68㎡) 287,980円14,000円/坪 1,542,750円75,000円/坪 即日
2階(案) 33.86坪(111.934㎡) 474,040円14,000円/坪 2,539,500円75,000円/坪 即日
階数
2階
面積
54.43坪(179.935㎡)
賃料(共益費含)
734,805円 13,500円/坪
預託金
3,918,960円 72,000円/坪
入居可能日
即日
一括請求リスト
階数
2階(案)
面積
20.57坪(68㎡)
賃料(共益費含)
287,980円 14,000円/坪
預託金
1,542,750円 75,000円/坪
入居可能日
即日
一括請求リスト
階数
2階(案)
面積
33.86坪(111.934㎡)
賃料(共益費含)
474,040円 14,000円/坪
預託金
2,539,500円 75,000円/坪
入居可能日
即日
一括請求リスト

※募集フロアや面積、賃貸条件、設備等は状況により変更になる場合があります。
※(案)のフロアは分割または一括貸の面積例です。
※賃貸条件の上段は月額、下段は坪単価を表示します。
※賃料、共益費は別途消費税の対象となります。
※掲載写真や図面(パース含む)が現況と異なる場合は現況を優先します。
※ご成約時は規定の仲介手数料を申し受けます。

S.C.城田ビルの周辺地図

S.C.城田ビルのビル概要

S.C.城田ビルは、2007年竣工、地上2階建ての横浜市都筑区仲町台に位置するオフィス・店舗物件です。横浜市営ブルーライン仲町台駅から徒歩3分という駅近の立地により、機動力のあるビジネス拠点の形成を可能にします。2000年代後半の竣工による清潔感のある外観を備え、企業のイメージ維持に寄与する仕様です。基準階面積は約20坪となっており、小規模な事務所移転や地域密着型の店舗運営において独立性を保った空間確保を可能にします。テナント募集において、港北ニュータウンエリアの整然とした街並みと、駅至近の利便性を享受できる環境が整っています。

オフィス探しで
こんなお悩み
ありませんか?
  • 物件を探す時間が無い
  • なかなか良い物件が
    見つからない
  • プロ目線で物件を
    提案してほしい

約60,000棟の
登録物件の中から
オフィス仲介のプロが
理想のオフィス探しを
徹底サポートいたします。

チェックした物件を