0120-38-8127

受付時間:8:30〜17:30(土日祝日は除く)

三晃丸の内ビルの建物情報

お問い合わせ番号:008-10906
三晃丸の内ビル 外観1
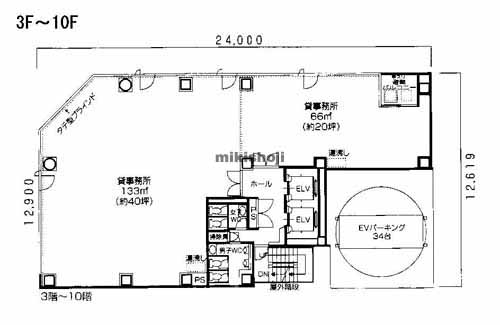
三晃丸の内ビル 平面1
三晃丸の内ビル 外観9
三晃丸の内ビル 平面1
所在地
名古屋市中区丸の内3-18-1
最寄駅
    久屋大通駅(名古屋市営桜通線・名城線) 2番口 3分
    栄駅(名古屋市営東山線・名城線) 2番口 8分
    栄町駅(名鉄瀬戸線) 10分
竣工
2002年10月
規模
地上10階/地下1階建
延床面積
926坪
基準階面積
60坪
駐車場設備
あり 収容台数34台
エレベーター
あり 2基
空調設備
個別方式
基準天井高
2,500mm

三晃丸の内ビルの公開募集区画

階数 面積 賃料(共益費含) 預託金 入居可能日 一括請求リスト
4階 18.14坪(59.967㎡) 253,960円14,000円/坪 1,596,320円88,000円/坪 2026.03上旬
階数
4階
面積
18.14坪(59.967㎡)
賃料(共益費含)
253,960円 14,000円/坪
預託金
1,596,320円 88,000円/坪
入居可能日
2026.03上旬
一括請求リスト

※募集フロアや面積、賃貸条件、設備等は状況により変更になる場合があります。
※(案)のフロアは分割または一括貸の面積例です。
※賃貸条件の上段は月額、下段は坪単価を表示します。
※賃料、共益費は別途消費税の対象となります。
※掲載写真や図面(パース含む)が現況と異なる場合は現況を優先します。
※ご成約時は規定の仲介手数料を申し受けます。

三晃丸の内ビルの周辺地図

オフィス探しで
こんなお悩み
ありませんか?
  • 物件を探す時間が無い
  • なかなか良い物件が
    見つからない
  • プロ目線で物件を
    提案してほしい

約60,000棟の
登録物件の中から
オフィス仲介のプロが
理想のオフィス探しを
徹底サポートいたします。

チェックした物件を