0120-38-8127

受付時間:8:30〜17:30(土日祝日は除く)

第二博多偕成ビルの建物情報

お問い合わせ番号:010-40130
第二博多偕成ビル 外観1
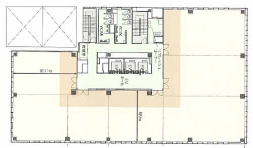
第二博多偕成ビル 平面1
第二博多偕成ビル 外観9
第二博多偕成ビル 平面1
所在地
福岡市博多区博多駅南1-10-4
最寄駅
    博多駅(福岡市営空港線・七隈線) 東2口 6分
    博多駅(JR) 筑紫口 7分
    祇園駅(福岡市営空港線) 5番口 15分
竣工
2012年 8月
規模
地上10階建
延床面積
2,746坪
基準階面積
207坪
駐車場設備
あり 収容台数80台
エレベーター
あり 3基
空調設備
個別方式
基準天井高
2,800mm
基準床荷重
5000N/㎡

第二博多偕成ビルの公開募集区画

階数 面積 賃料(共益費含) 預託金 入居可能日 一括請求リスト
10階 72.52坪(239.737㎡) 1,667,960円23,000円/坪 16,969,680円234,000円/坪 2026.02中旬
階数
10階
面積
72.52坪(239.737㎡)
賃料(共益費含)
1,667,960円 23,000円/坪
預託金
16,969,680円 234,000円/坪
入居可能日
2026.02中旬
一括請求リスト

※募集フロアや面積、賃貸条件、設備等は状況により変更になる場合があります。
※(案)のフロアは分割または一括貸の面積例です。
※賃貸条件の上段は月額、下段は坪単価を表示します。
※賃料、共益費は別途消費税の対象となります。
※掲載写真や図面(パース含む)が現況と異なる場合は現況を優先します。
※ご成約時は規定の仲介手数料を申し受けます。

第二博多偕成ビルの周辺地図

オフィス探しで
こんなお悩み
ありませんか?
  • 物件を探す時間が無い
  • なかなか良い物件が
    見つからない
  • プロ目線で物件を
    提案してほしい

約60,000棟の
登録物件の中から
オフィス仲介のプロが
理想のオフィス探しを
徹底サポートいたします。

チェックした物件を