0120-38-8127

受付時間:8:30〜17:30(土日祝日は除く)

オーシャン博多ビルの建物情報

お問い合わせ番号:010-00066
オーシャン博多ビル 外観1
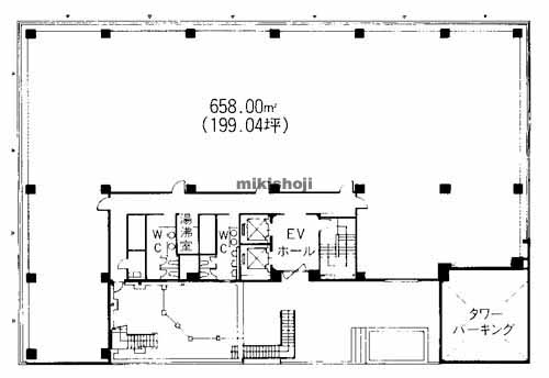
オーシャン博多ビル 平面1
オーシャン博多ビル エントランス1
オーシャン博多ビル エントランス2
オーシャン博多ビル エレベーターホール1
オーシャン博多ビル エレベーターホール2
オーシャン博多ビル 水回り1
オーシャン博多ビル 水回り2
オーシャン博多ビル 水回り3
オーシャン博多ビル 外観9
オーシャン博多ビル 平面1
オーシャン博多ビル エントランス1
オーシャン博多ビル エントランス2
オーシャン博多ビル エレベーターホール1
オーシャン博多ビル エレベーターホール2
オーシャン博多ビル 水回り1
オーシャン博多ビル 水回り2
オーシャン博多ビル 水回り3
所在地
福岡市博多区冷泉町5-32
最寄駅
    祇園駅(福岡市営空港線) 2番口 3分
    呉服町駅(福岡市営箱崎線) 1番口 5分
    櫛田神社前(福岡市営七隈線) 3番口 7分
竣工
1991年 2月
規模
地上8階/地下1階建
延床面積
2,346坪
基準階面積
199坪
駐車場設備
あり 収容台数62台
エレベーター
あり 2基
空調設備
個別方式
基準天井高
2,600mm

オーシャン博多ビルの公開募集区画

階数 面積 賃料(共益費含) 預託金 入居可能日 一括請求リスト
5階 199坪(657.854㎡) 3,184,000円16,000円/坪 38,208,000円192,000円/坪 2026.06上旬
階数
5階
面積
199坪(657.854㎡)
賃料(共益費含)
3,184,000円 16,000円/坪
預託金
38,208,000円 192,000円/坪
入居可能日
2026.06上旬
一括請求リスト

※募集フロアや面積、賃貸条件、設備等は状況により変更になる場合があります。
※(案)のフロアは分割または一括貸の面積例です。
※賃貸条件の上段は月額、下段は坪単価を表示します。
※賃料、共益費は別途消費税の対象となります。
※掲載写真や図面(パース含む)が現況と異なる場合は現況を優先します。
※ご成約時は規定の仲介手数料を申し受けます。

オーシャン博多ビルの周辺地図

オフィス探しで
こんなお悩み
ありませんか?
  • 物件を探す時間が無い
  • なかなか良い物件が
    見つからない
  • プロ目線で物件を
    提案してほしい

約60,000棟の
登録物件の中から
オフィス仲介のプロが
理想のオフィス探しを
徹底サポートいたします。

チェックした物件を