0120-534-011

受付時間:8:30〜17:30(土日祝日は除く)

福岡ダイヤモンドビルの建物情報

お問い合わせ番号:010-00169
福岡ダイヤモンドビル 外観1
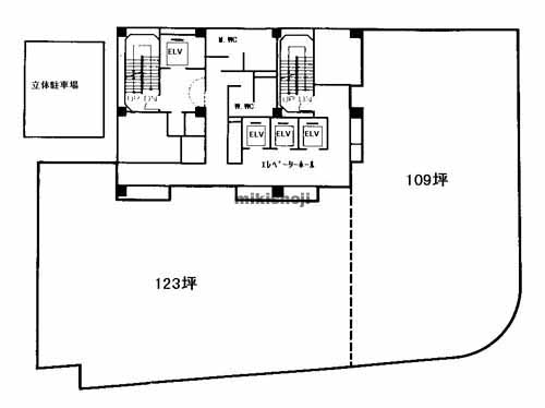
福岡ダイヤモンドビル 平面1
福岡ダイヤモンドビル 外観9
福岡ダイヤモンドビル 平面1
所在地
福岡市中央区天神1-12-7
最寄駅
    天神駅(福岡市営空港線) 11番口 1分
    西鉄福岡[天神]駅(西鉄天神大牟田線) 北口 3分
    天神南駅(福岡市営七隈線) 2番口 6分
竣工
1993年12月
規模
地上9階/地下2階建
延床面積
3,569坪
基準階面積
232坪
駐車場設備
あり 収容台数45台
エレベーター
あり 4基
空調設備
個別方式
基準天井高
2,700mm
基準床荷重
500kg/㎡

福岡ダイヤモンドビルの公開募集区画

階数 面積 賃料(共益費含) 預託金 入居可能日 一括請求リスト
5階 60.56坪(200.199㎡) 相談相談/坪 相談相談/坪 即日
階数
5階
面積
60.56坪(200.199㎡)
賃料(共益費含)
相談 相談/坪
預託金
相談 相談/坪
入居可能日
即日
一括請求リスト

※募集フロアや面積、賃貸条件、設備等は状況により変更になる場合があります。
※(案)のフロアは分割または一括貸の面積例です。
※賃貸条件の上段は月額、下段は坪単価を表示します。
※賃料、共益費は別途消費税の対象となります。
※掲載写真や図面(パース含む)が現況と異なる場合は現況を優先します。
※ご成約時は規定の仲介手数料を申し受けます。

福岡ダイヤモンドビルの周辺地図

オフィス探しで
こんなお悩み
ありませんか?
  • 物件を探す時間が無い
  • なかなか良い物件が
    見つからない
  • プロ目線で物件を
    提案してほしい

約60,000棟の
登録物件の中から
オフィス仲介のプロが
理想のオフィス探しを
徹底サポートいたします。

チェックした物件を